Holzbauoffensive BW

Futur2

Freiburg, Baden-Württemberg

Ansicht Nordwest 1 | Ansicht Nordwest
Die Baugemeinschaft Futur2 erhielt den Zuschlag für ein 6-geschossiges Massivholzgebäude - das derzeit höchste seiner Art in Baden-Württemberg.
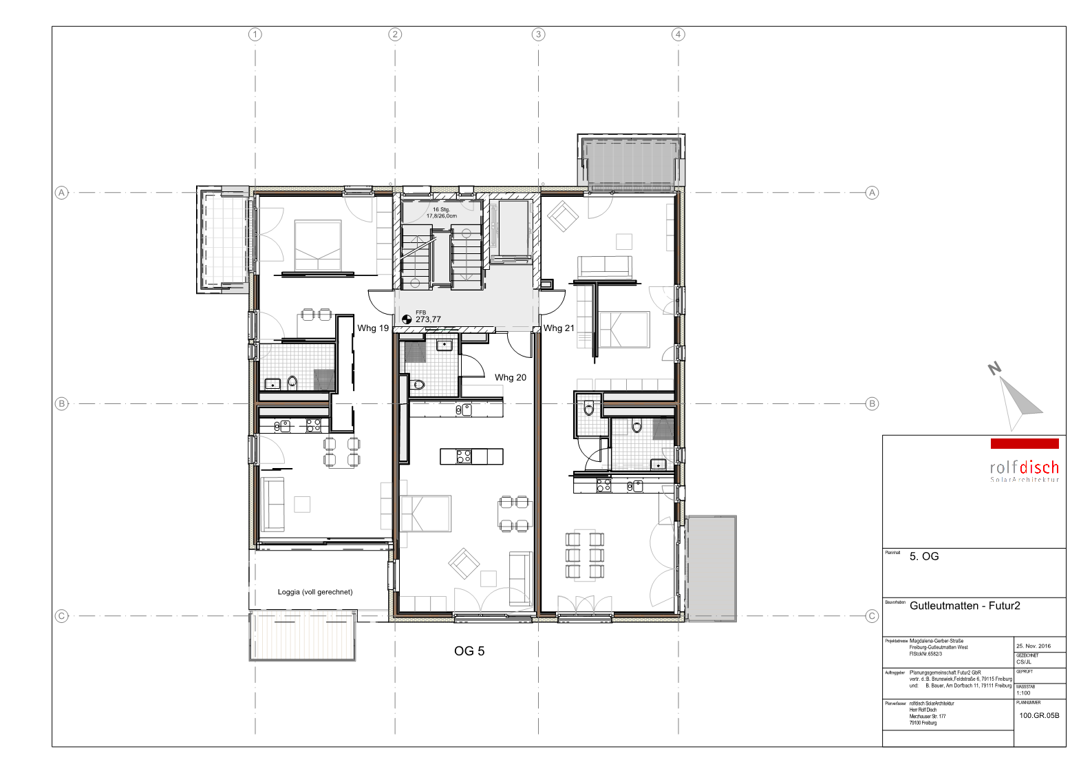
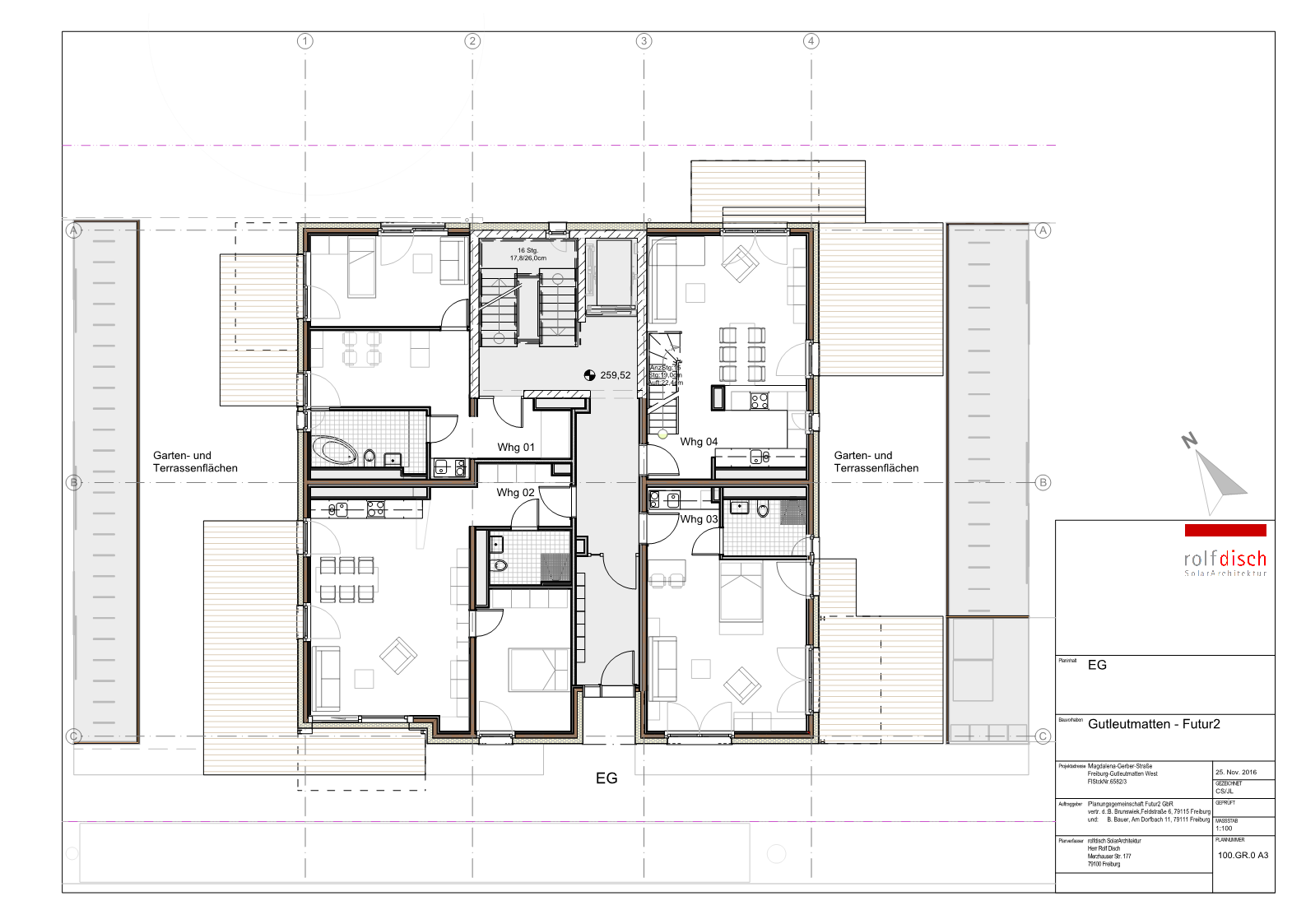
Entwurf: In einem Bewerbungsverfahren für Baugemeinschaften um Baugrundstücke im Baugebiet Gutleutmatten erhielt die Baugemeinschaft Futur2 2014 den Zuschlag. Das Gebäude wurde entsprechend der Vorgaben des Bebauungsplans als Punkthaus mit 21 barrierefreien Wohnungen und insgesamt 1.320 m² Wohnfläche errichtet. Hiervon sind dreizehn Einheiten Eigentums- und acht geförderte Mietwohnungen. Das begrünte Dach dient als gemeinsam genutzter Dachgarten für die Hausgemeinschaft. Das Gebäude erfüllt die hohen energetischen Anforderungen an ein KfW-Effizienzhaus 40. Eine thermische Solaranlage ergänzt die Fernwärmeversorgung des Quartiers. Das Projekt ist inspiriert vom Nachhaltigkeits-Aktivisten Harald Welzer und benennt sich nach dessen Stiftung „Futur2“. 

Holz: Alle konstruktiven Bauteile, mit Ausnahme des Untergeschosses mit Tiefgarage und des Treppenkerns mit Aufzugsturm, bestehen aus Massivholz: die Wände aus Brettsperrholz, die Decken aus Brettstapelelementen. Nichttragende Wände sind als Trockenbauständerwände, die Balkone als abgehängte Metallkonstruktion ausgeführt. 

Kostengünstig bauen: Die tragenden Wände wurden konsequent durch alle Geschosse übereinander angeordnet. Die Wandstärken der tragenden Wände wurden minimiert. Hierdurch konnte zusätzliche Wohnfläche gewonnen werden.
Ansicht Nordost 2 | Ansicht Nordost
Ansicht West 3 | Ansicht West
Innenraum 4 | Innenraum
Holzdecke 5 | Holzdecke
Montage Holzdecke 6 | Montage Holzdecke
Grundinformation
Fertigstellung |  2019
Bauherrschaft |  Baugemeinschaft Futur2, Freiburg
Architektur |  Rolf Disch SolarArchitektur, Freiburg
Tragwerksplanung |  Wirth Baustatik, Dipl.-Ing. Andreas Wirth, Freiburg
Bauzeit |  24 Monate
Geschosszahl |  6 + Dachausstieg
Grundstücksgröße |  1.130 m²
Bruttogrundfläche |  2.835 m² incl. TG
Baukosten, netto (KG300 + 400) |  1.139 € / m² BGF
Fotografie |  Britt Schilling, Freiburg; Rolf Disch Solararchitektur, Freiburg

Technische Aspekte
Konzept |  Brettsperrholz (Binder Holz), WDVS, Mineralwolle, Putz (tragende Wände); Stahlbeton (Treppenkern mit Aufzug, UG); Brettschichtholz (Decken und Dach)
Holzbaufirma |  Zimmerei Steiger u0026 Riesterer, Staufen
Herkunft des Holzes, Zertifizierung |  PEFC und FSC (Wände + Decken)
Wertschöpfungskette Holz |  Ausführung mit lokalen Handwerksbetrieben. Das Modell der Baugemeinschaft ermöglichte schon im Vorfeld enge soziale Kontakte der Bewohner. Der Anteil von Sozialwohnungen ermöglicht eine sozial durchmischte Bewohnerstruktur.
Energiestandard |  KfW-Effizienzhaus 40
Technische Ausstattung |  Fernwärme, thermische Solaranlage; Fernwärme undThermische Solaranlage zur Brauchwasserunterstützung,Lüftungsanlage mit WRG
Energieverbrauch |  21 kWh/m²a
U-Wert Wand | Dach | Boden | Fenster in W/(m²K) |  0,10 | 0,91| 1,12| 0,72


Circular Economy Cost Saving Energy Efficiency


Grundriss Erdgeschoss Grundriss Erdgeschoss Grundriss 5. OG Grundriss 5. OG Detail Holzbau Detail Holzbau