Bürogebäude

Illwerke Zentrum Montafon

Vandans, Österreich

Ansicht Nord 1 | Ansicht Nord
Ein Holzbau der Superlative: Eines der weltgrößten Bürogebäude aus Holz, das neue Standards für nachhaltiges Bauen setzt.
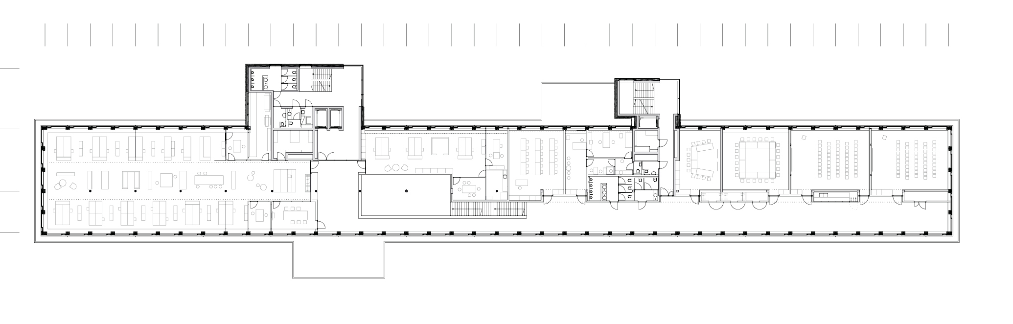
Entwurf: Um für alle 270 Arbeitsplätze vergleichbare Bedingungen zu schaffen, war die Tiefe des Hauses begrenzt. Daher wuchs es auf eine Länge von 120 Metern an und schiebt sich nun über die Wasserfläche hinaus. Der Entwurf ist auf die Vorteile modularer Bauweise und die Kapazitäten der lokalen Handwerksbetriebe ausgerichtet. Die Möglichkeiten des Hybridbaus wurden voll ausgeschöpft und die Stärken des Holzbaus mit denen des Massivbaus kombiniert.

Holz: Das Illwerke Zentrum ist die erste Anwendung des „LifeCycle Tower (LCT)“ auf dem freien Markt. Dieses Bausystem ermöglicht mit einer vorgefertigten Holz-Beton-Verbunddecke einen Holzbau auch jenseits der Hochhausgrenze. Die aussteifende Konstruktion besteht weitgehend aus Stahlbeton (Sockel, Erschließungskerne). Die tragenden Fassaden werden durch Holz-Doppelstützen gegliedert.

Energie: Hocheffiziente Wärmepumpentechnologie mit Leistungszahlen über 4,5, eine vollautomatisierte Lüftungsanlage mit Wärmerückgewinnung, C02-Messung zur Volumenstromregelung, automatisch geregelte Jalousiensteuerung, eine präsenzabhängige LED-Beleuchtung sowie eine luftdichte Gebäudehülle ermöglichen den Passivhausstandard. Als Energiequelle dient ganzjährig das Kühlwasser des Wasserkraftwerks. Die Nutzer können an ihrem PC Licht, Temperatur und Blendschutz steuern.
Fassade 2 | Fassade
Arbeitsplätze 3 | Arbeitsplätze
Foyer 4 | Foyer
1m
Grundinformation
Fertigstellung |  2013
Bauherrschaft |  Vorarlberger Illwerke AG, Bregenz (AT)
Architektur |  Hermann Kaufmann + Partner ZT GmbH, Schwarzach (AT)
Tragwerksplanung |  Merz Kley Partner, Dornbirn (AT)
Bauzeit |  6 Monate (Holzkonstruktion), 24 Monate insgesamt
Geschosszahl |  5 + Untergeschoss
Grundstücksgröße |  161 288 m²
Bruttogrundfläche |  11 497 m²
Baukosten, netto (KG300 + 400) |  1 718 EUR/m² BGF
Auszeichnungen |  Staatspreis Architektur und Nachhaltigkeit 2014 (Nominierung), Holzbaupreis Vorarlberg 2015 (Preis Holzmischbauweise), Constructive Alps 2015 (Anerkennungspreis), materialPREIS 2015 (1. Auszeichnung), Hypo Bauherrenpreis 2015 (1. Preis), Europäischer Architekturpreis 2015 Energie + Architektur 2016 (Auszeichnung)

Technische Aspekte
Konzept |  Holzhybridsystem (LifeCycle Tower)
Holzbaufirma |  Sohm HolzBautechnik GmbH, Alberschwende (AT)
Herkunft des Holzes, Zertifizierung |  2/3 des Holzes aus Österreich (Montafon, Vorarlberg); Bauprodukte mit verschiedensten Umweltzeichen (natureplus, IBO Prüfzeichen, Österreichisches Umweltzeichen, Blauer Engel)
Nachverfolgbarkeit des Holzes |  Holz aus der Region
Wertschöpfungskette Holz |  70% der Baukosten wurden an Unternehmen aus der Region vergeben
Energiestandard |  Passivhaus, ÖGNI-Zertifikat / DGNB Platin, Klimaaktiv Silber
Technische Ausstattung |  Abwärmenutzung (angrenzendes Wasserkraftwerk), Wärmepumpe, kontrollierte Be- und Entlüftung mit Wärmerückgewinnung
Energieverbrauch |  14 kWh/m²a (Heizwärmebedarf), < 30 kWh/m²a (Primärenergiebedarf)
U-Wert Wand | Dach | Boden | Fenster in W/(m²K) |  0,10 | 0,08 | 0,11 (Fußboden), 0,26 | 0,73


Regional Wood Cost Saving Energy Efficiency


Lageplan Lageplan Grundriss Erdgeschoss Grundriss Erdgeschoss Grundriss 1. OG Grundriss 1. OG Perspektive mit Bauelementen Perspektive mit Bauelementen