Gewerbliche Nutzung

Salzlagerhalle

Geislingen an der Steige, Deutschland

Ansicht Südost 1 | Ansicht Südost
Materialität, Form und Detaillierung der Halle sind konsequent aus den sich durch die Salzlagerung ergebenden konstruktiven und funktionalen Erfordernissen heraus entwickelt.
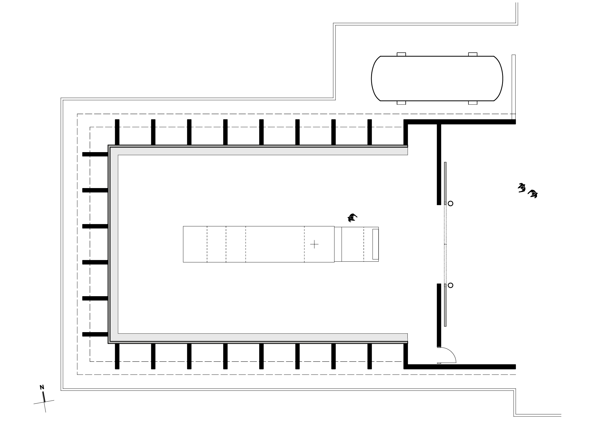
Entwurf: Durch geänderte Logistik im Streusalzvertrieb ändern sich auch die Anforderungen an die Schütt- und Einfahrtshöhe (9 m) von Salzlagerhallen: ein neuer Gebäudetypus entsteht. Die Konzeption und Konstruktion der Halle richtet sich nach den speziellen Anforderungen der Salzlagerung. Die gewählte Konstruktion minimiert die Anzahl von schadensanfälligen Metallbauteilen. Die wenigen unvermeidlichen Verbindungen können jederzeit kontrolliert und gewartet werden. Salzbeständige PVC-Wellplatten gewährleisten Belichtung und konstruktiven Holzschutz. Durch geneigte Schüttwände aus Holz verringert sich der Bewehrungsanteil der Stahlbetonschotten und die Lagerkapazität wird erhöht.

Holz: Salz greift die meisten Baustoffe an. Da Salz jedoch einen konservierenden Effekt auf Holz hat, sind alle Bauteile im Innenbereich in Holz ausgeführt. Das häufigste Problem bei Salzhallen ist, dass Salz in Konstruktionshohlräume gelangt und dort zu Bauschäden führt. Alle Bauelemente sind daher vollständig offen und hohlraumfrei konzipiert. Die Verbindung zwischen Holzkonstruktion und Stahlbetonlisenen wird durch zwei Edelstahlgewindestangen hergestellt. Diese können jederzeit auf ihren Zustand untersucht und gegebenenfalls ausgetauscht werden.
Ansicht Nord 2 | Ansicht Nord
Zufahrt mit Blick auf gelagertes Salz 3 | Zufahrt mit Blick auf gelagertes Salz
Fassadendetail 4 | Fassadendetail
20m
Grundinformation
Fertigstellung |  2016
Bauherrschaft |  Bundesrepublik Deutschland, vertreten durch das Staatliche Hochbauamt Ulm
Architektur |  vautz mang architekten bda, Stuttgart (DE)
Tragwerksplanung |  Furche Geiger Zimmermann Tragwerksplanung, Köngen (DE)
Bauzeit |  14 Monate
Geschosszahl |  1
Baukosten, netto (KG300 + 400) |  647 000 € netto inkl. Baugrundverdichtung
Auszeichnungen |  u.a. Deutscher Holzbaupreis 2017 (Anerkennung), Balthasar Neumann Preis 2018 (Auszeichnung), Deutscher Ingenieurbaupreis 2018 (Auszeichnung), Hugo Häring Auszeichnung 2017

Technische Aspekte
Konzept |  Holzskelettbau auf Stahlbetonunterbau; Dach: Leimholzplatten (5cm)
Holzbaufirma |  Rieg Holzbau, Schwäbisch Gmünd (DE)
Herkunft des Holzes, Zertifizierung |  Österreich (Leimholzbauteile) (AT)
Wertschöpfungskette Holz |  Regional ansässige Handwerksbetriebe
Energiestandard |  Gebäude ist unbeheizt
Technische Ausstattung |  LED-Leuchten
U-Wert Wand | Dach | Boden | Fenster in W/(m²K) |  Gebäude ist ungedämmt


Regional Wood 100% Wood


Grundriss Grundriss Schnitt Schnitt Detail Verbindung Holzkonstruktion mit Stahlbetonlisene Detail Verbindung Holzkonstruktion mit Stahlbetonlisene