Bâtiments commerciaux

Entrepôt de sel

Geislingen an der Steige, Allemagne

Vue sud 1 | Vue sud
Les matériaux, la forme et les détails de cet entrepôt correspondent aux exigences de construction et de fonction posées par le stockage du sel.
Projet : Suite à l’évolution de la logistique de l’épandage de sel, les exigences posées aux entrepôts en matière de hauteur de déversement et d’entrée (9 m) ont donné lieu à un nouveau type de bâtiment. Le concept et la construction de l’entrepôt répondent aux impératifs spécifiques du stockage du sel. La structure choisie minimise le nombre d’éléments en métal soumis à la corrosion. Les quelques fixations métalliques absolument nécessaires peuvent être contrôlées et réparées à tout moment. Les panneaux PVC ondulés, résistant au sel, laissent entrer la lumière tout en protégeant le bois. Les parois intérieures en bois légèrement inclinées permettent de réduire le nombre d’armatures des cloisons en béton et d’augmenter la capacité de stockage.

Bois : Le sel attaque la plupart des matériaux de construction. Or, il a un effet de conservation sur le bois. Pour cette raison, l’ensemble des parois intérieures sont en bois. Le principal problème des entrepôts de sel est que cette substance pénètre dans les interstices des parois et provoque des dommages. Ici, les éléments individuels sont entièrement ouverts et ne présentent aucune cavité. La structure en bois est fixée à chaque pilier en béton par deux vis en acier inoxydable dont l’état peut être très simplement contrôlé et qui peuvent être remplacées à tout moment si nécessaire.
Vue nord 2 | Vue nord
Entrée, avec vue sur le sel entreposé 3 | Entrée, avec vue sur le sel entreposé
Détail de la façade 4 | Détail de la façade
20m
Informations de base
Année d’achèvement |  2016
Investisseur |  République fédérale d’Allemagne, représentée par l’Office public des bâtiments d’Ulm
Architecture |  vautz mang architekten bda, Stuttgart (DE)
Ingénierie structurelle |  Furche Geiger Zimmermann Tragwerksplanung, Köngen (DE)
Durée de construction |  14 mois
Nombre d’étages |  1
Coûts de construction nets |  647 000 EUR nets, compactage du sol inclus
Récompenses |  Entre autres : Prix allemand de la construction en bois 2017 (prix honorifique), Prix Balthasar Neumann 2018 (mention), Prix allemand du génie civil 2018 (mention), Prix Hugo Häring 2017

Aspects techniques
Concept |  Ossature en bois sur fondation en béton armé ; toit : panneaux en bois lamellé (5 cm)
Entrepreneur en bois |  Rieg Holzbau, Schwäbisch Gmünd (DE)
Origine du bois, certificat |  Autriche (éléments en bois lamellé) (AT)
Chaîne de valeur des produits forestiers |  Entreprises artisanales de la région
Norme d’efficacité énergétique |  Le bâtiment n’est pas chauffé
Systèmes énergétiques |  clairage LED
Valeur U mur | toit | sol | fenêtres (W/(m²K)) |  Le bâtiment n’est pas isolé


Bois local 100 % en bois


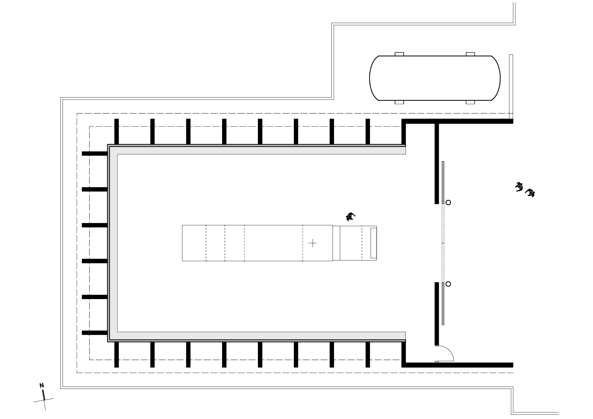
Plan Plan Coupe Coupe Détail de la fixation de la structure en bois sur Détail de la fixation de la structure en bois sur