Ouvrages d'ingénierie

Gymnase de Riedenberg

Stuttgart, Allemagne

Le gymnase avec une charpente en Baubuche 1 | Le gymnase avec une charpente en Baubuche
Le gymnase est couvert avec une ossature innovante en Baubuche, et du bois résineux modifié a été utilisé pour la première fois pour la façade.
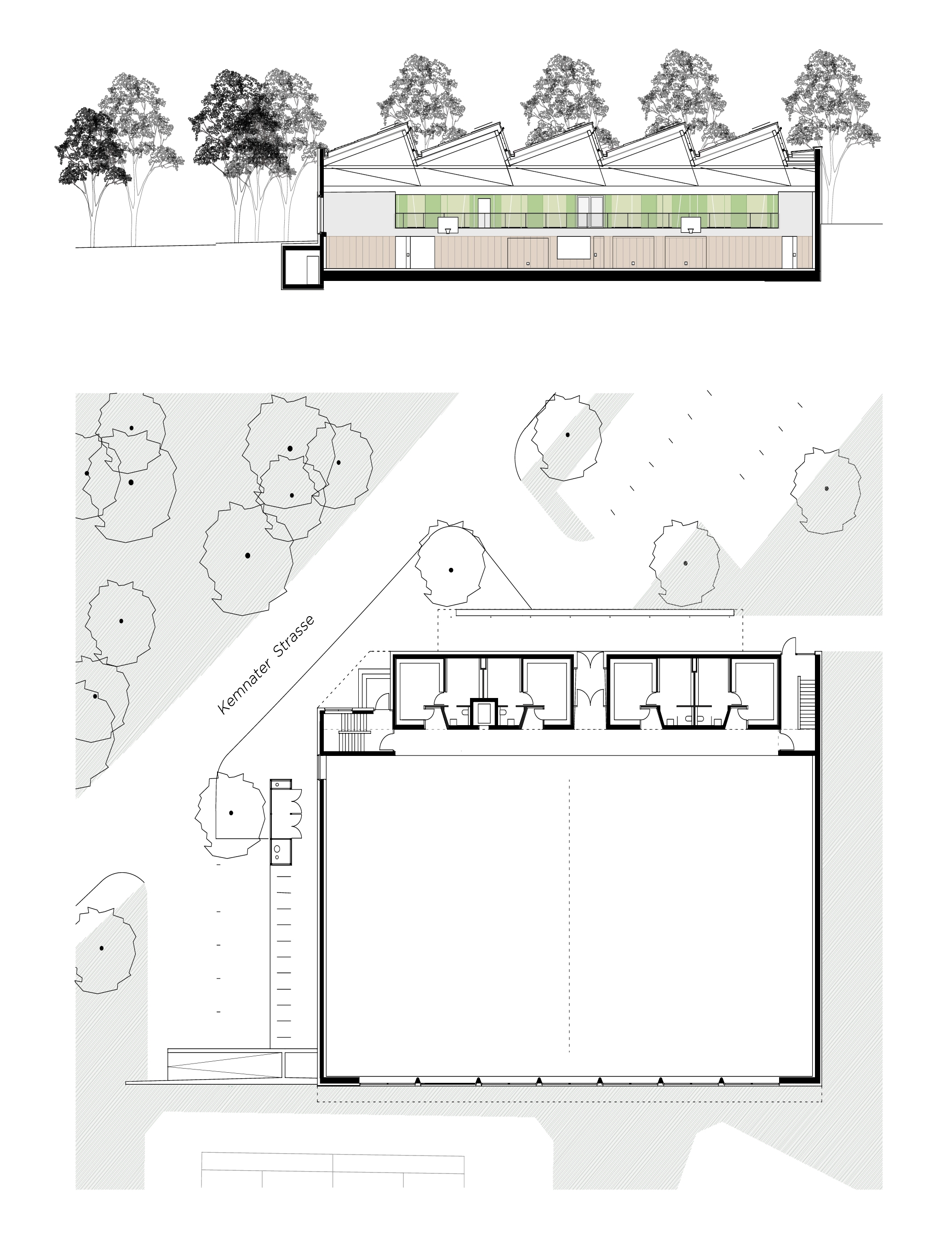
Projet : Le gymnase divisible en 2 terrains est utilisé par les élèves des trois écoles situées à proximité immédiate. Il est conforme aux exigences des compétitions de sports de ballons et il est donc 2,00 m plus large que prescrit par la norme DIN 18032 pour un gymnase de taille normale. Compte tenu de la présence de courts de tennis directement adjacents, le sol du gymnase a été abaissé de 3,00 m environ sous le niveau du terrain. À l‘exception de la charpente, l‘ouvrage est une construction massive.

Bois : La construction en treillis de grande portée du plafond se compose de Baubuche ; le toit plié est conçu comme un plafond nervuré en bois avec un habillage insonorisant côté intérieur. La poutre en Baubuche est l‘une des premières de ce type sous cette forme et la construction en bois innovante a été subventionnée par l‘UE en tant que projet de recherche. Les parois d‘impact ayant une fonction insonorisante sont également en Baubuche. L‘enveloppe extérieure du bâtiment se compose d‘un panneau à trois couches ventilé en bois résineux, modifié selon la méthode « Accoya », dont la surface est brossée et revêtue d‘une lasure colorée en couche épaisse ouverte à la diffusion. Il s‘avère particulièrement résistant aux intempéries et a été monté pour la toute première fois sous cette forme et sur une telle surface.

Énergie : La construction neuve affiche un besoin annuel en énergie primaire inférieur de 30% aux exigences du décret allemand sur les économies d‘énergie (EnEV 2014) et de 20% aux valeurs maximales pour les coefficients U.
Le toit de la salle de sport 2 | Le toit de la salle de sport
La façade avec des panneaux à la méthode « Accoya » 3 | La façade avec des panneaux à la méthode « Accoya »
Exposition naturelle de la salle de sport 4 | Exposition naturelle de la salle de sport
24m
Informations de base
Année d’achèvement |  2018
Investisseur |  Ville de Stuttgart (DE)
Architecture |  Cheret Bozic Architekten BDA DWB, Stuttgart (DE)
Ingénierie structurelle |  bde GmbH, Stuttgart (DE)
Nombre d’étages |  1
Taille de la parcelle |  2 900 m²
Superficie hors œuvre |  1 920 m² superficie brute par étage
Coûts de construction nets |  2 590 EUR/m² superficie brute

Aspects techniques
Concept |  Construction en treillis en Baubuche, intercalée avec un plancher nervuré à base de bois de construction massif
Entrepreneur en bois |  Holzbau Schaible GmbH, Wildberg (DE)
Origine du bois, certificat |  Service régionale des fôrets de la Forêt Noire (DE)
Norme d’efficacité énergétique |  Besoin en énergie primaire 30 % inférieur aux prescriptions du décret allemand sur les économies d'énergie EnEV 2014
Systèmes énergétiques |  Ventilation et aération mécaniques avec récupération de chaleur, chauffage à pellets
Consommation d’énergie |  18,47 kWh/m²a
Valeur U mur | toit | sol | fenêtres (W/(m²K)) |  0,177 (toit gymnase) | 0,185 (mur extérieur secteur paroi d'impact)


Bois local Efficacité énergétique


Vue de face et du dessus Vue de face et du dessus Coupe, plan Coupe, plan