Immeubles d’habitation

Jesolo Lido Pool Villa

Jesolo, Italie

Vue du jardin 1 | Vue du jardin
Une maison individuelle haut de gamme, dont les exigences en matière de design et d‘efficacité énergétique ont été satisfaites grâce à l‘utilisation d‘éléments en bois préfabriqués.
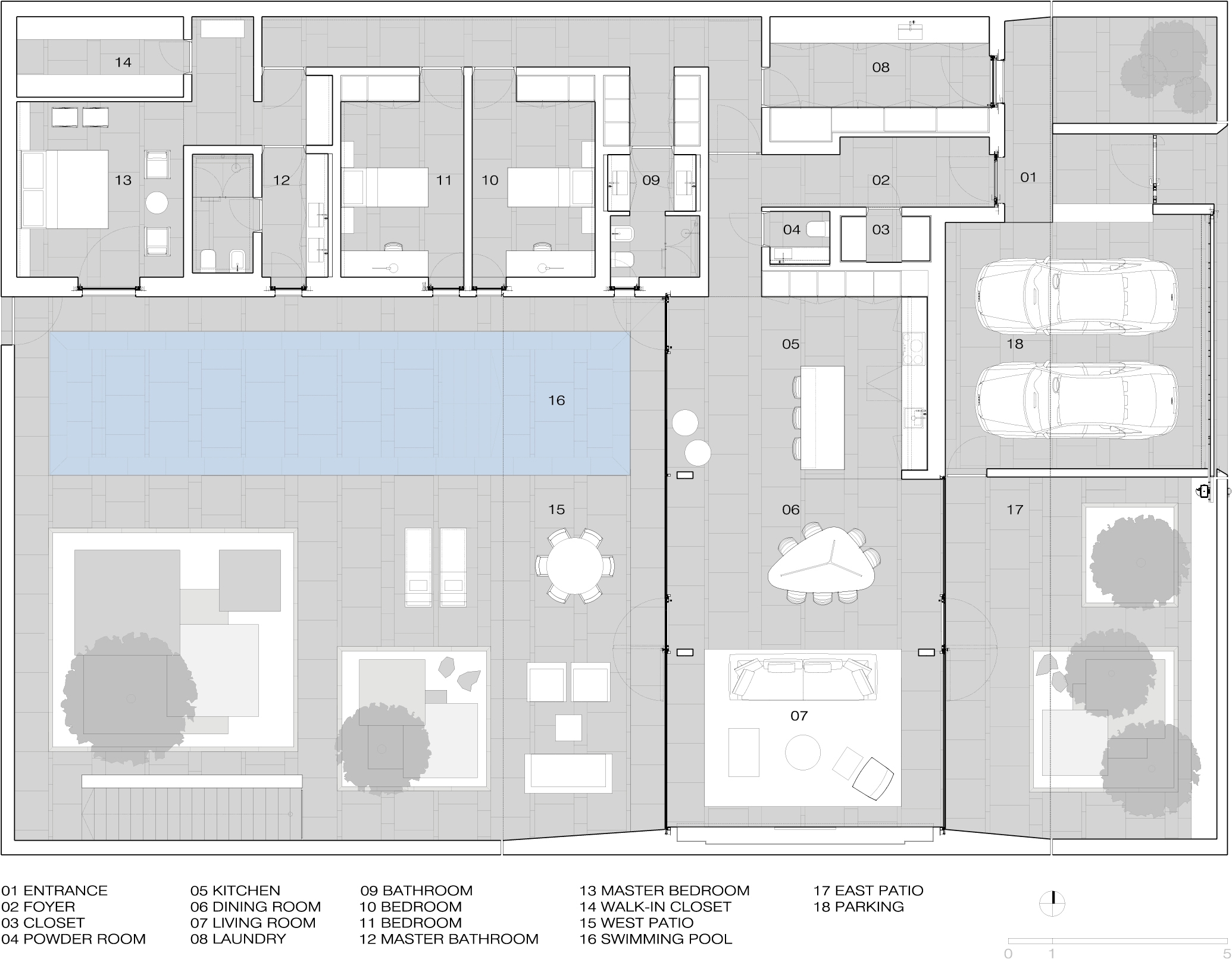
Projet : Une maison privée dans un lieu de villégiature sur la côte vénitienne devait réaliser la prouesse de matérialiser un vaste plan de sol, une piscine et des espaces en plein air faciles à entretenir. L‘espace d‘habitation transparent s‘ouvre sur deux grandes cours distinctes, chacune avec un olivier pour transformer l‘espace. Un débord de toit de quatre mètres vers l‘ouest offre de l‘ombre lorsque l‘été est chaud. L‘équipement technique a largement été intégré dans les surfaces.

Bois : Une grande partie du bâtiment d‘habitation se compose d‘éléments en bois préfabriqués, qui doivent répondre à des exigences statiques particulières en raison de la situation de l‘habitation dans une zone à risque sismique. En parallèle, leur utilisation a permis d‘associer de vastes espaces intérieurs à un agréable climat ambiant.

Énergie : Les propriétés bénéfiques des cloisons en bois sur le plan thermique, encore améliorées par des surisolations des murs et des vitrages, ainsi que l‘élimination conséquente des ponts thermiques, réduisent le besoin en énergie calorifique du bâtiment à moins de 30 kWh/m²a. Le bâtiment a été distingué par le label certification énergétique APE, classe A.
Espace repas 2 | Espace repas
Salle ouverte 3 | Salle ouverte
Entrée 4 | Entrée
Terrasse 5 | Terrasse
29m
Informations de base
Année d’achèvement |  2013
Investisseur |  particulier
Architecture |  JMA, Milan (IT)
Durée de construction |  6 mois
Nombre d’étages |  1 + sous-sol
Taille de la parcelle |  600 m²
Superficie hors œuvre |  240 m²

Aspects techniques
Concept |  Construction sur ossature combinée bois et acier
Norme d’efficacité énergétique |  certification énergétique APE, classe A
Systèmes énergétiques |  Photovoltaïque, pompe à chaleur électrique
Consommation d’énergie |  26,7 kWh/m²a (besoin de chaleur)


Efficacité énergétique


Plan de situation Plan de situation