Office Buildings

Administrative Offices

Le Bourg-d’Oisans, France

Administrative building and Alpine landscape 1 | Administrative building and Alpine landscape
The administrative building stands confident and tall in the Alpine landscape, appearing as a rock or spur of the surrounding mountains
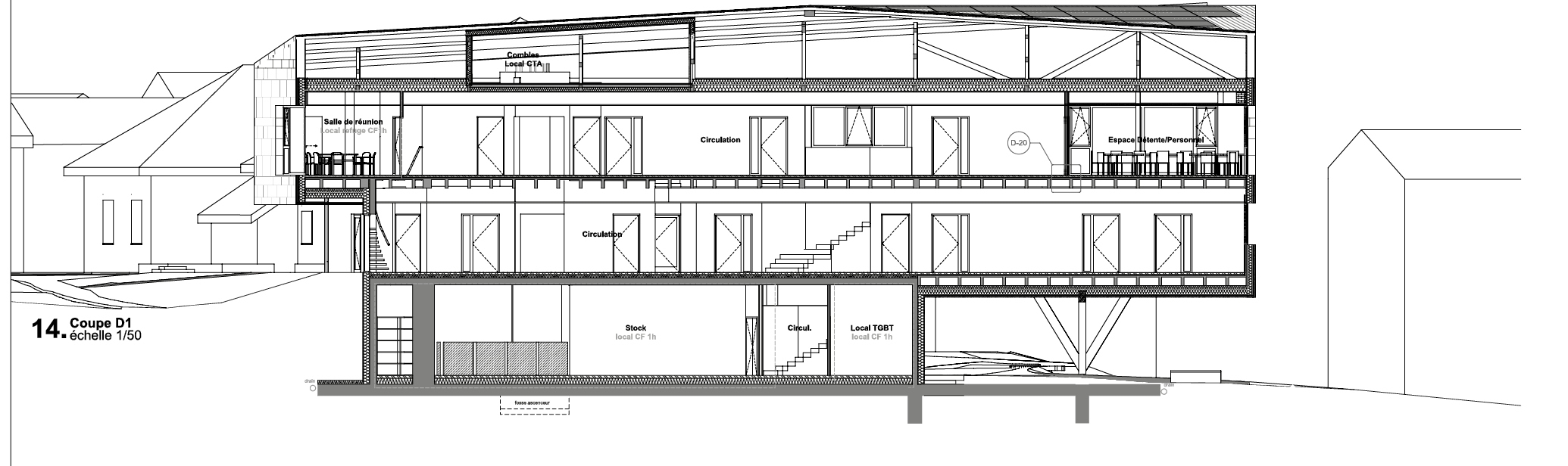
Design: The impressive cantilever structure of the building is supposed to minimize the impact on the soil and give the building a succinct appearance. Looking at it from the outside, the fact that the structural system and interior finishing are almost entirely made of timber is barely visible. The facade, made of brushed fiber cement tiles, emphasis the connection to the mineral aspect of the mountains. Generously glazed areasallow for an above-average utilization of natural lighting, as the daylight factor surpasses the legal requirements substantially.

Wood: The two-storey structure is entirely made of wood, set on a concrete basement level. The use of wood for walls, floors, and the structural system results in a building envelope without any thermal bridges. Timber was used here both traditionally (roof made with solid timber) and with modern techniques (laminated veneer lumber for the cantilever structure). All in all, 226 m³ of regional wood were used for the construction.

Energy: The building meets the passive house requirements. The roof and parts of the walls are insulated with recycled cotton. This way, the building achieves a positive carbon footprint. The triple glazing is framed with timber and aluminum. The roof and the moveable sun shade fins feature photovoltaics modules.
Street View 2 | Street View
Light-flooded rooms 3 | Light-flooded rooms
Staircase 4 | Staircase
5 |
13m
Basic information
Year of Completion |  2018
Investor |  Community of communes in the Oisans region& municipality of Le Bourg-d'Oisans (FR)
Architecture |  Atelier des Vergers Architectes, Saint Etienne (FR)
Structural Engineering |  CEBEA, Grenoble (FR); Wood: Arborescence, Lyon (FR)
Construction Time |  22 months
Number of floors |  3
Plot size |  9 300 m²
Gross floor area |  1 200 m²
Awards |  Prix Régional de la Construction Bois Auvergne-Rhône-Alpes 2018
Photography |  Pictures 1-4: Johan Méallier, Saint-Étienne (FR)

Technical aspects
Concept |  Wall/roof/floor: solid timber; cross-laminated timber for ceiling structure; laminated veneer lumber for cantilever structure; roof with zinc-coated sheeting
Woodworking |  Roof truss: Altibois, Groisy (FR); carpentry: Dauphiné Menuiserie, Échirolles (FR); joinery: L’Art du Bois, Échirolles (FR)
Origin of Timber, Certification |  certified Bois des Alpes™ wood (FR), PEFC
Traceability of Timber |  yes (certified Bois des Alpes™ wood)
Forestry Value Chain |  Yes, local value chain through wood from the region; the procurement included provisisions on social inclusion (mandatory, i.a., for the wood construction)
Energy Efficiency Standard |  Passive house; BEPOS – MountEE; E+C-label effinergie +
Energy Systems |  Dual flow ventilation, wood pellet heating (shared with neighboring town hall); 24 kWc photovoltaics (on roof and sun shade fins); floor heating (concrete screed)
Energy Consumption  |  14.3 kWh/m²a (calculated; PHPP/Passive House Planning Package)


Cost Saving Energy Efficiency


Site Plan Site Plan Floor Plan (Ground Floor) Floor Plan (Ground Floor) Cross Section Cross Section