Design: The project is a statement for minimalism in buildings and proves that great indoor environment qualities can be achieved through simple means. The newly created room serves as a base framework for variable uses. A generous open room without any walls – except for a room-in-room solution accommodating side rooms and the stairs to the gallery. The loft is characterized by its large glass facade to the south of 8x4 meters, allowing for an extensive view of the village and the mountains. The project deliberately went without hidden services and interior finishing. The concrete floor on the ground level, colored by the soot from the old barn, and the massive timber beam ceiling up on the gallery are essential to the refined timber frame construction. By opting against the use of a standardized interior finishing, the raw surfaces and natural materials define the atmosphere and charm of the building.
Wood: The timber frame construction featuring cellulose insulation uses rough-cut massive timber boards with a width of up to 46 centimeters. The trees were selected and cut down in the forest of the building owners' family (to quote the building owner: “Sure, I can show them to you, tree stump and all.”) and processed by the local carpenter.
Special Projects
Loft in the Barn
Hittisau, Austria
The agricultural part of a Vorderwald longhouse was replaced with a refined shell construction brimming with atmosphere and charm.
Basic information
Technical aspects
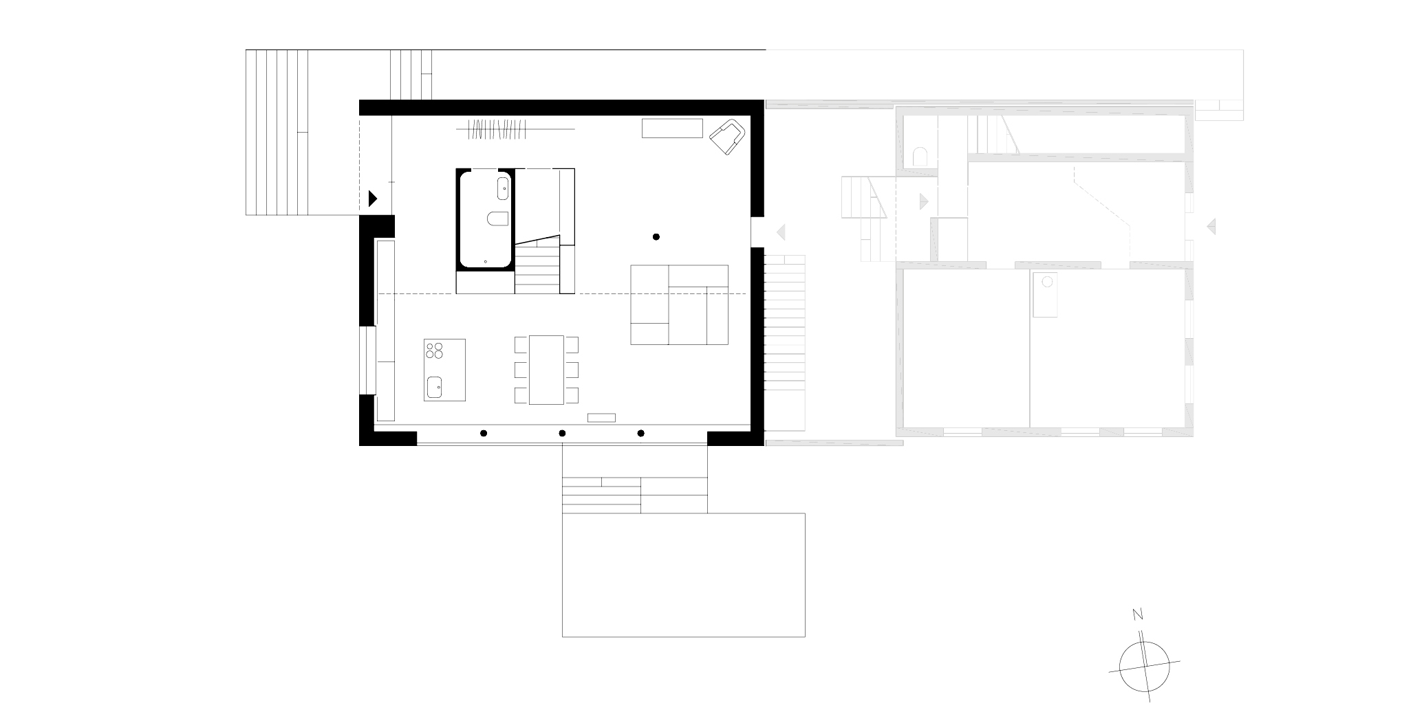
Ground Floor plan
Floor Plan (Ground Floor)
Year of Completion |
2014
Investor |
private
Architecture |
Georg Bechter Architektur+Design, Langenegg (AT)
Structural Engineering |
zte Leitner, Schröcken (AT); master builder: Haller Bau, Sulzberg (AT)
Construction Time |
5 months
Number of floors |
1 + gallery
Gross floor area |
118 m² (floor area), 146 m² (usable area)
Awards |
Mies van der Rohe Award 2017 (Nominated), Vorarlberger Holzbaupreis 2015 (Prize)
Photography |
Photos 1-4: Adolf Bereuter, Dornbirn (AT)
Technical aspects
Concept |
timber frame construction
Woodworking |
Zimmerei Nenning, Hittisau (AT)
Origin of Timber, Certification |
Austria
Traceability of Timber |
Yes (own forest, distance of 3 km)
Forestry Value Chain |
Local sawmill, carpentry; transport distance sum of 6 km
Energy Systems |
Solar collectors, pellet heating
Energy Consumption |
38 kWh/m²a (heating energy demand)
U-Value Wall | Roof | Floor | Windows (W/(m²K)) |
0,14-0,31 | 0,15 | 0,21 | 0,8
Ground Floor plan
