Civil Engineering Works

Riedenberg Sports Hall

Stuttgart, Germany

Die Halle mit Dachtragwerk aus Baubuche 1 | Die Halle mit Dachtragwerk aus Baubuche
The sports hall is covered with innovative beech laminated wood roofing, for the facade, modified conifers wood was used for the first time.
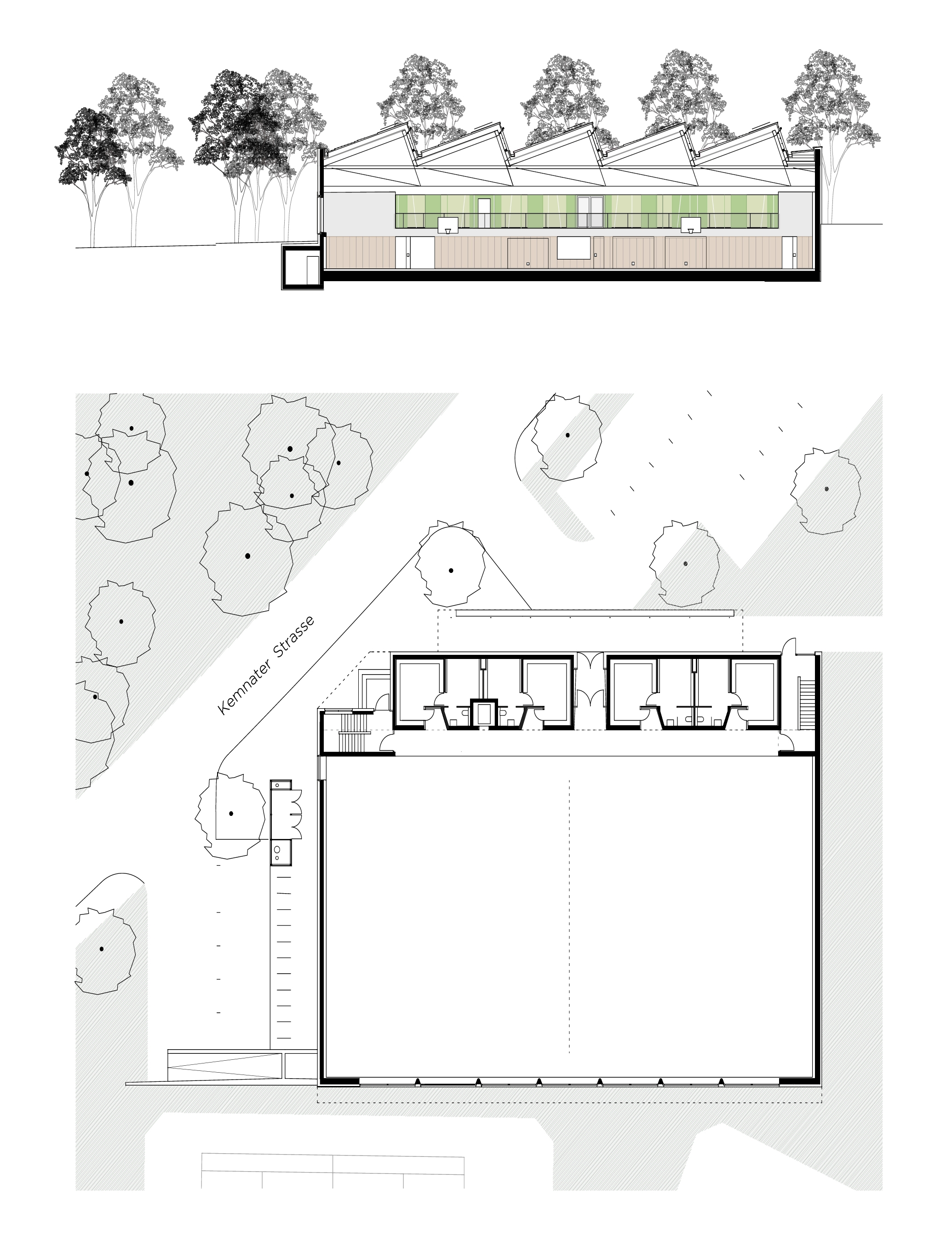
Design: A sports hall with two playgrounds is used by pupils from three schools in the area. The building meets the requirements of competitions of sports industry with ball and is therefore 2 meters wider compared to the normal size of the halls according to norm DIN 18032. In view of the tennis area in the immediate vicinity, the floor of the sports hall was reduced by about 3 meters below the existing terrain. With the exception of the roof building, the building is a massive construction.

Wood: The wide-spread roof frame consists of beech laminated wood, while the folded roof is designed as a wooden ribbed roof with an acoustically efficient cladding. The beech laminated wood carrier is one of the first of its kind in Germany, and the innovative wooden structure has been supported by the European Union as a research project. Acoustically efficient reflective protective walls are also made of beech laminated wood. The outer lining of the building consists of a ventilation three-layer plate of conifers wood, modified by the "Accoya" method, grounded on the surface and coated with a steam-permeable thick layer glaze. It is considered particularly resistant to weathering and has been used for the first time in this form and dimension in construction.


Energy: In accordance with the requirements of the Energy Saving Regulation (EnEV 2014), the new building achieves a 30% lower annual primary energy consumption and a 20% lower U-value than prescribed.
Das Sheddach der Sporthalle 2 | Das Sheddach der Sporthalle
Die Fassade mit Accoya-Platten 3 | Die Fassade mit Accoya-Platten
Natürliche Belichtung der Sporthalle 4 | Natürliche Belichtung der Sporthalle
24m
Basic information
Year of Completion |  2018
Investor |  Landeshauptstadt Stuttgart (DE)
Architecture |  Cheret Bozic Architekten BDA DWB, Stuttgart (DE)
Structural Engineering |  bde GmbH, Stuttgart (DE)
Number of floors |  1
Plot size |  2 900 m²
Gross floor area |  1 920 m² (BGFa)
Construction Costs (netto) |  2 590 EUR/m² gross area

Technical aspects
Concept |  Beech laminated wood-panelled frame, wooden ribbed roof in between
Woodworking |  Holzbau Schaible GmbH, Wildberg (DE)
Origin of Timber, Certification |  Regional forestry in Germany (DE)
Energy Efficiency Standard |  Primary energy needed 30% less than the Energy Saving Regulation EnEV 2014
Energy Systems |  Mechanical ventilation with heat recovery, pellet heating
Energy Consumption  |  18,47 kWh/m²a
U-Value Wall | Roof | Floor | Windows (W/(m²K)) |  0.177 (roof of sports hall) | 0.185 (outer wall area reflective wall)


Regional Wood Energy Efficiency