Office Buildings

Sääga office building

Balzers, Liechtenstein

Ansicht von Norden 1 | Ansicht von Norden
The carpentry shares its new wooden structure with other business units in a flexibly arranged building.
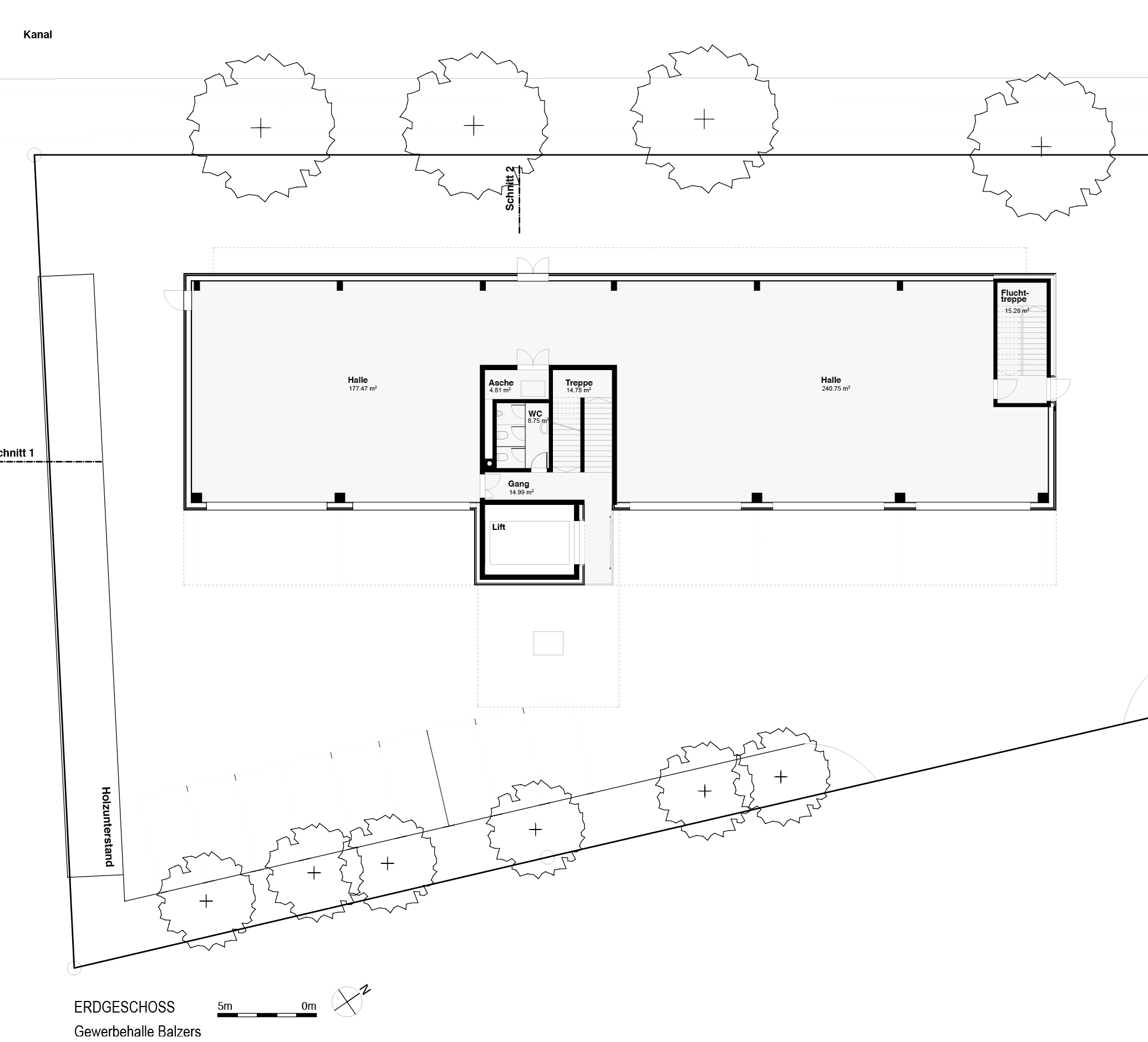
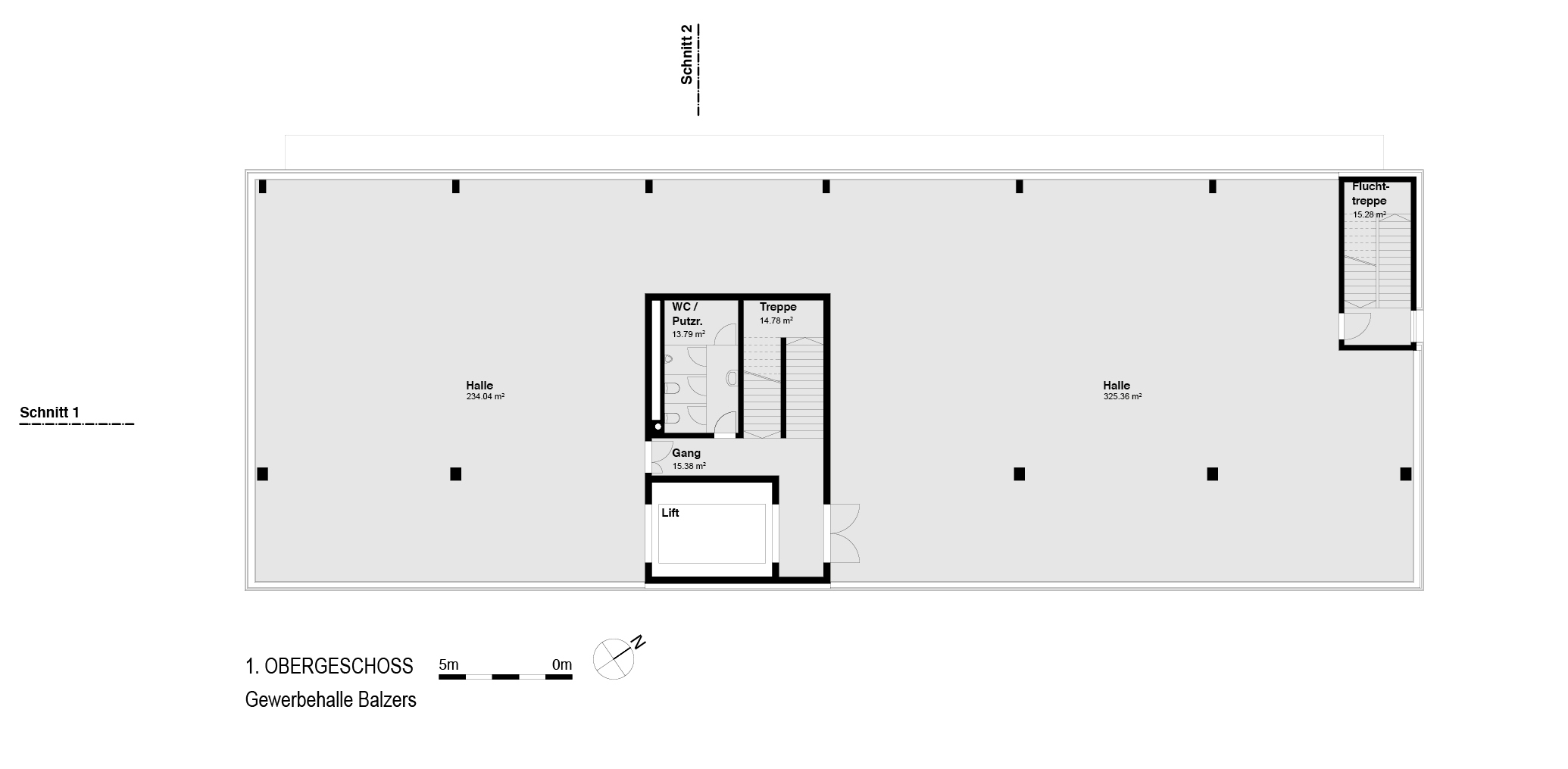
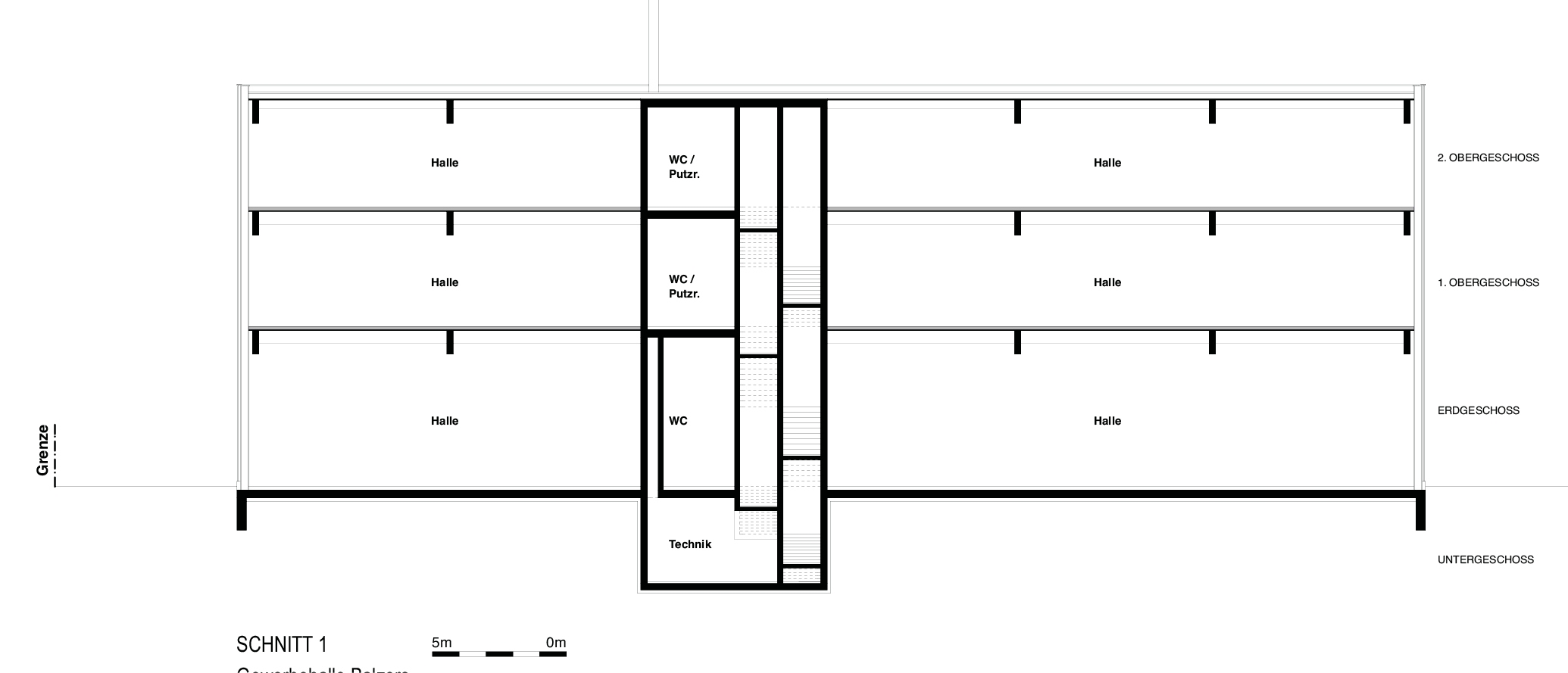
Design: The craft hall is located on Landstraße in Balzers. The building is oriented parallel to and accessible from the nearby canal. It is shared by a joinery shop, a fitness centre and an architectural office. The structure of the floor plan responds to the concept of universal open space, which ensures a high degree of flexibility in the use of the building. As a strong contrast to the timber structure, the monolithic staircase is made of visible concrete. The basement level has a clear, industrial function: it houses a joinery shop with storage, a workshop and a showroom.
Wood: A timber element construction was chosen as the structural system, which had a positive cost and time saving impact and suited the client's workshop material. The façade is made of vertical timber cladding which, with its fine detailing, acts as joinery. It is divided by dividing lines and the window frames are accentuated by the surrounding sheet metal. The wooden ceiling elements are executed with hard concrete cladding. The large canopy of the upper floors has been constructed using the main load-bearing structure inside, while the front framing elements of the façade are load bearing and reinforcing.
Zugang Schreinerei 2 | Zugang Schreinerei
Halle im Obergeschoss 3 | Halle im Obergeschoss
Erschließungskern 4 | Erschließungskern
41m
Basic information
Year of Completion |  2011
Investor |  Anton Vogt Schreinerei AG, Balzers (LI)
Architecture |  Patrik Beck, ARCHITEKTUR PITBAU, Triesenberg (LI)
Structural Engineering |  XYLO AG, Schaan (LI); IPB Pannungen AG, Balzers (LI)
Construction Time |  48 months
Number of floors |  3
Plot size |  2 151 m²
Gross floor area |  1 814 m²
Construction Costs (netto) |  1 584 EUR/m²
Awards |  Liechtenstein Wood Oscar 2018 (nominacija)

Technical aspects
Concept |  Wooden wall elements, wooden ceiling elements, staircase in visible concrete
Woodworking |  Frommelt Zimmerei und Ing. Holzbau AG, Schaan (LI)
Origin of Timber, Certification |  Austria (facade), Switzerland (solid wood)
Traceability of Timber |  Yes (companies listed)
Forestry Value Chain |  Participants were exclusively local craftspeople
Energy Efficiency Standard |  Minergie
Energy Systems |  Wood chip boiler (heating + hot water)
Energy Consumption  |  34.4 khW/m²a (heat required for heating)
U-Value Wall | Roof | Floor | Windows (W/(m²K)) |  0,17 | 0,17 | 0,3 | 1,1-1,4


Regional Wood Cost Saving