Refurbishment and Restoration

School and Library

Guillestre, France

Neubau und Bestandsgebäude 1 | Neubau und Bestandsgebäude
Wishing to use wood from its own forest for the upcoming refurbishment of a school, a municipality opted for a Bois des Alpes™ certification.
History: Situated in the center of Guillestre, the historical school building helps establish the identity of the village and its 2,300 residents. The building was set to be refurbished at the same time the municipal library was found to be in need of renovations as well. The western wing, built in the 1960s, was demolished. In its place, a wood building was erected, housing the library and a multipurpose hall while carefully adding to the traditional architecture.

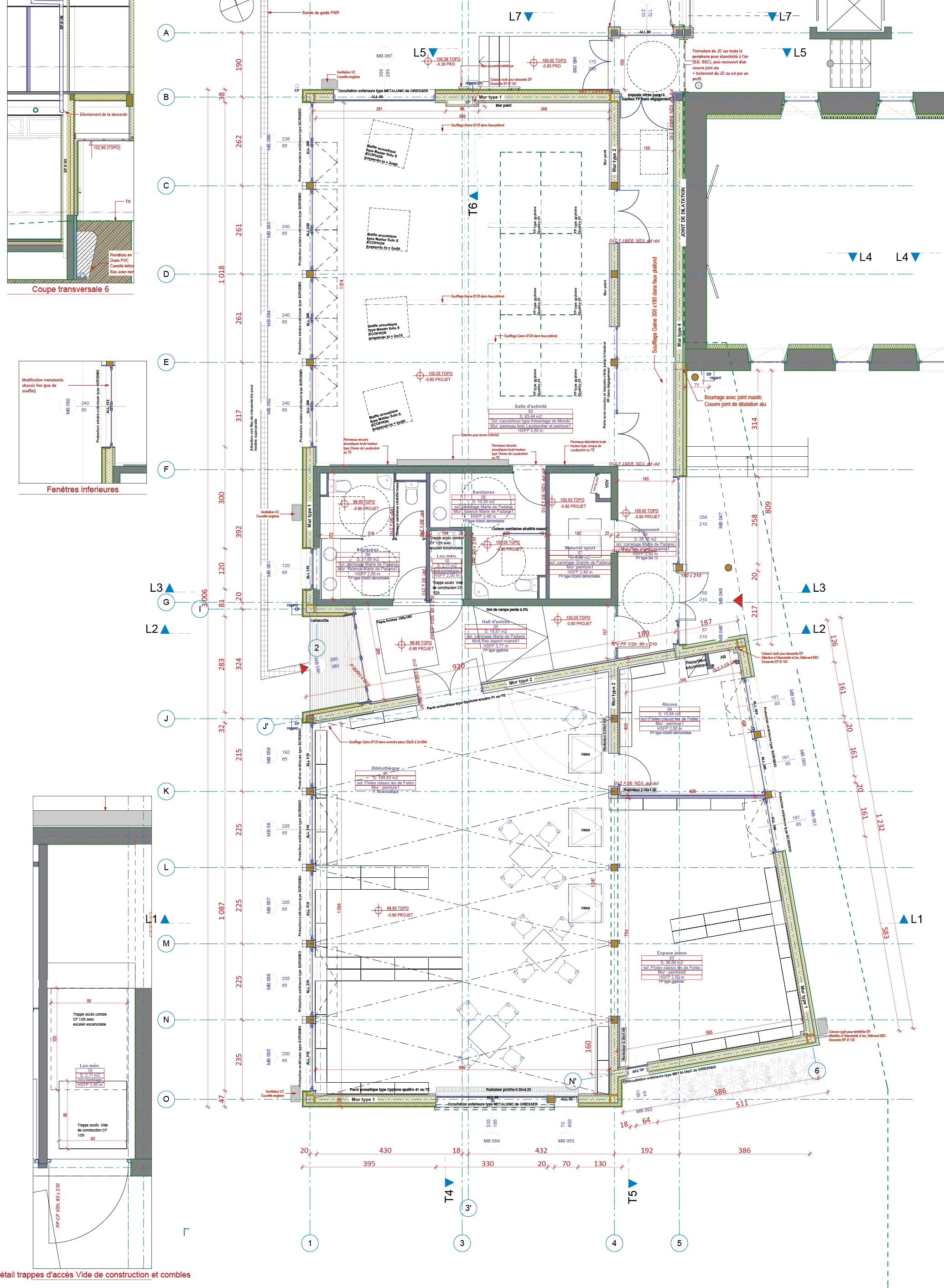
Design: The elementary school (750 m²) was set to preserve its original character, thus the facade was left untouched. The refurbishment was done within a year while the school operations continued. A life cycle analysis supported the realization of the project. The large, open multipurpose room (644 m²) and the furniture give off an inviting air. The structural system sports three-dimensional, underlaid girders made of silver fir.

Wood: The used wood (98 m³ of silver fir and larch) was cut in the municipal forest of Guillestre, with the procurement made possible through the use of Bois des Alpes™-certified wood. The sawmill and the wood construction company are located only 19 and 8 kilometers away, respectively, proving that that very short supply and production chains are possible.
Dachtragwerk der Mehrzweckhalle 2 | Dachtragwerk der Mehrzweckhalle
Anschlussdetail 3 | Anschlussdetail
Die neue Stadtbibliothek 4 | Die neue Stadtbibliothek
14m
Basic information
Year of Completion |  2013
Investor |  Municipality of Guillestre (FR)
Architecture |  SELARL Blay Coulet, Gap (FR); SCOP SOLEA Voutier et Associés Architectes, Gap (FR); PRO BAT TP Architecture, Tourcoing (FR)
Structural Engineering |  Gaujard Technologies (FR)
Construction Time |  26 months
Number of floors |  2
Plot size |  2 392 m²
Gross floor area |  1 749 m² (total area), 434 m² of that used for the western wing (local wood)
Construction Costs (netto) |  1 509 €/m² SHON
Awards |  Bâtiment Durable Méditerranée niveau Or
Photography |  Pictures 1-4: Bois des Alpes, Chambéry (FR)

Technical aspects
Concept |  Timber frame walls, post-and-beam structure
Woodworking |  Alpes Méditerranée Charpente, Saint-Crepin (FR)
Origin of Timber, Certification |  Wood for the structural system and the facade from the municipal forest of Guillestre (FR), certificates PEFC and Bois des Alpes™; wood for the interior finishing (Scots pine, fir) not from Europe
Traceability of Timber |  Yes, the use of Bois des Alpes™-certified wood guarantees the traceability of the wood
Forestry Value Chain |  Only local companies commissioned (sawmill, wood construction company)
Energy Efficiency Standard |  Programme Agir pour l'Energie, Approche environnementale et bioclimatique
Energy Systems |  Connected to the local district heating network (wood pellet system, 1 MW)
Energy Consumption  |  70 kWh/m²a


Circular Economy Energy Efficiency


Floor Plan Floor Plan Cross Section Cross Section