History: The working quarters was built in 1889 to complement the hotel and winery Joseif Weiss situated near the Dornbirn station . In 1997, it was listed as a site of cultural heritage, narrowly escaping a planned demolition. While the neighboring winery was renovated in 2001, several plans for the annex were discussed and none of them realized. The building was abandoned for several years. In 2016, new owners acquired it with the plan to refurbish and repurpose it as an apartment, including a studio.
Design: The design was tailored around the basic structure of the building, preserving the barn, thrashing floor, and carriage shed. The new rooms were integrated with respect and care, making the contrast between the historical structure and the new additions transparent. The loftlike living and working areas feature a split level design, two-storey open spaces, multi-purpose spaces, and cozy attic rooms. The atmosphere is enhanced by the sunlight breaking through openings in the facade and sidings.
Wood: The dominant construction material is maritime pine boards, used for walls as well as for the furniture. The building owners invested many working hours in the refurbishment.
Refurbishment and Restoration
Working quarters Josef Weiss
Dornbirn, Austria
While the exterior of the building, listed and protected as a site of cultural heritage, was preserved in its entirety, its interior was carefully modernized, allowing the building to keep telling its story.
Basic information
Technical aspects
Site Plan
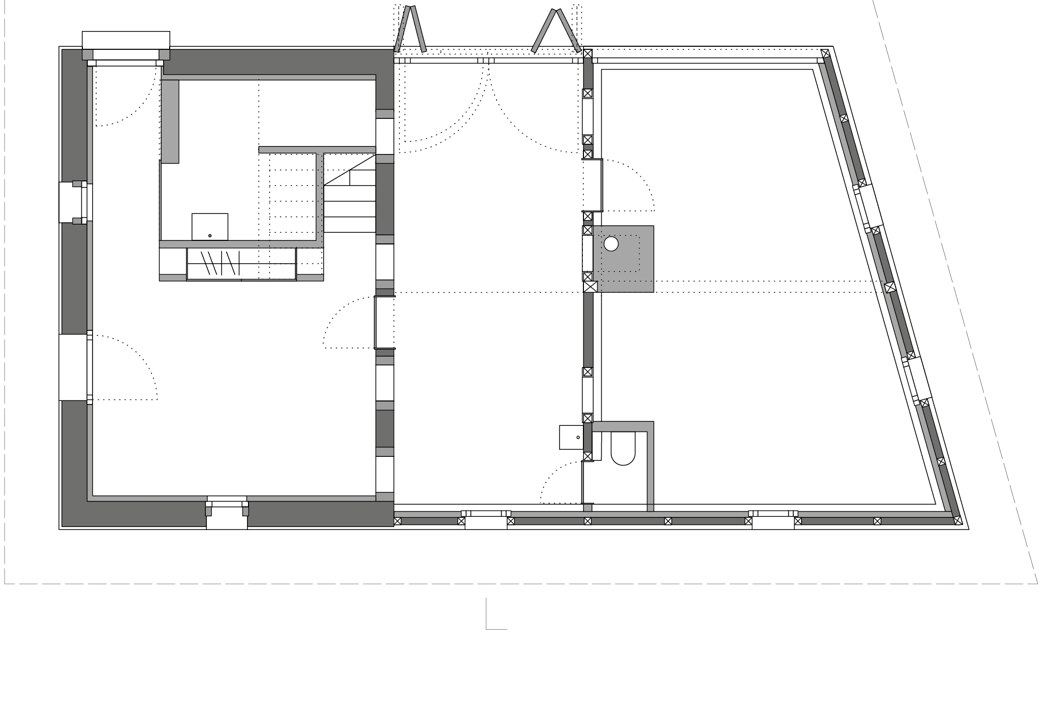
Floor Plan (Ground Floor)
Cross Section
Year of Completion |
2017
Investor |
Philipp Nußbaumer and Julia Kick (AT)
Architecture |
Julia Kick Architektin, Dornbirn (AT)
Structural Engineering |
Bmst. DI (FH) Martin Fetz, Hohenems (AT)
Construction Time |
10 months
Number of floors |
3
Plot size |
407,7 m²
Gross floor area |
265,7 m²
Awards |
Holzbaupreis Sanierung 2017; Bestes Haus 2018; Nominierung Mies van der Rohe Award 2019
Photography |
Pictures 1-4: Angela Lamprecht, Hard (AT)
Technical aspects
Concept |
Existing building partially solid masonry, partially timber frame construction
Woodworking |
Mayer Holzbau, Götzis (AT)
Forestry Value Chain |
Only local companies commissioned
Energy Systems |
Heat recovery ventilation
Energy Consumption |
43 kWh/m²a (heating energy demand)
Site Plan
