Obnova in prenova

Brunarica Brendlehaus

Schellenberg, Lihtenštajn

Pogled z juga 1 | Pogled z juga
S ciljnim dodajanjem novih komponent je bilo brunarico in skedenj mogoče ohraniti in ju narediti uporabna za današnje potrebe.
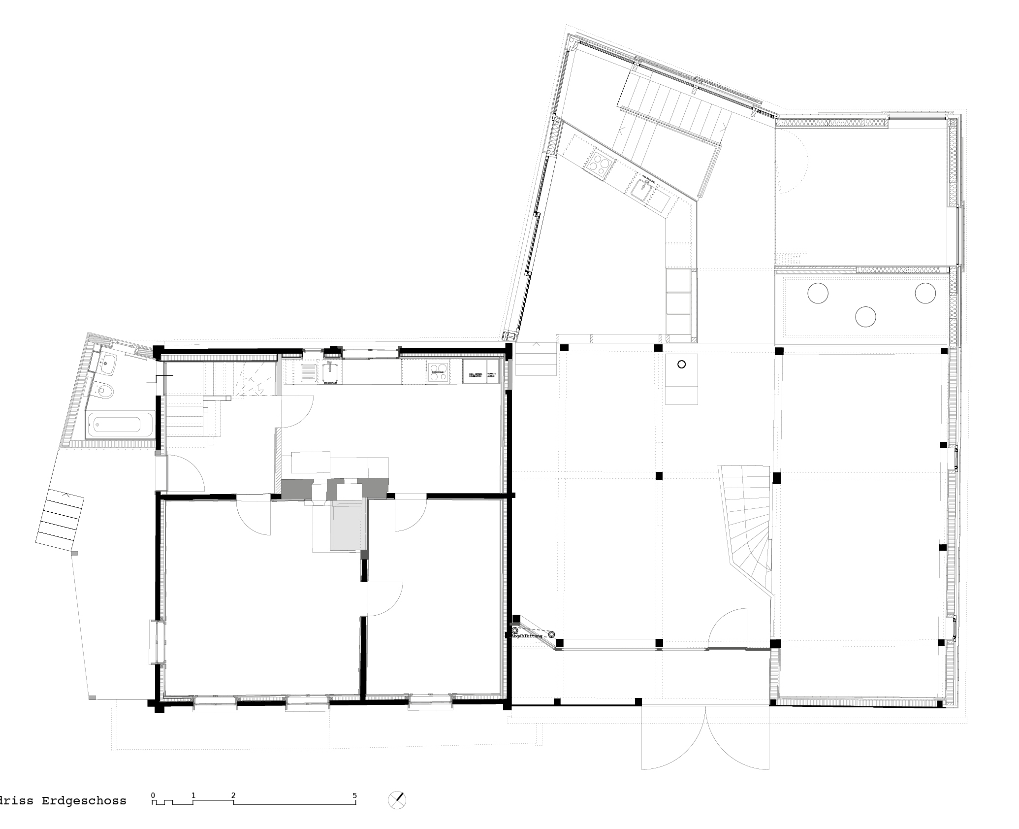
Oblikovanje: 200-letna spomeniško zavarovana brunarica Brendlehaus s skednjem je bila z zmernimi posegi ohranjena. Kmečki del hiše, lokalno tipična konstrukcija s tramovi na masivni zidani kletni etaži, in skedenj, v deske odeta stoječa konstrukcija, sta bili spremenjeni v stanovanjski enoti. Kmečka hiša je v notranjosti dobila izolacijo iz lesenih vlaken, namesto nekdanje vhodne ute pa je dobila nov vhod, ki vključuje tudi prostor z vodovodno napeljavo. Struktura kmečke hiše je pri tem ostala nespremenjena. Ob skednju je nekdanjo kolníco nadomestila nova stavba. S prenovo so dali varčno osvetljenemu prostoru skednja vse, kar mu je primanjkovalo, da je lahko postal uporaben kot stanovanjska enota: svetlobo, razgled, kuhinjo, dve kopalnici in tri spalnice. Struktura osrednjega prostora v skednju je bila lahko tako ohranjena. 

Les: Izbira materialov je sledila obstoječemu stanju; v kolikor je bilo mogoče, so bili ohranjeni obstoječi materiali in elementi. Obstoječa škatlasta okna so bila s pomočjo novih tesnil ojačana za sodobne potrebe. Streha je bila na novo prekrita z obstoječimi opečnatimi strešniki, pred tem pa je bila na nosilne tramove dodana izolacijska plast. Skedenj je med tramovi dobil izolacijo; zunanjost je oblečena v grobo žagane smrekove deske, notranjost pa v tri slojne lesne plošče.
Pogled s severa 2 | Pogled s severa
Nekdanji skedenj 3 | Nekdanji skedenj
Nadstropje kmečke hiše 4 | Nadstropje kmečke hiše
42m
Splošne informacije
Leto zaključka |  2006
Investitor |  Občina Schellenberg (LI)
Arhitektura |  Uli Mayer, Urs Hüssy Architekten ETH/SIA, Triesen (LI)
Gradbeni inženiring |  XYLO AG, Schaan (LI)
Število nadstropij |  4
Velikost parcele |  1 237 m²
Bruto talna površina |  564 m² (osnovna površina po SIA 416)
Stroški gradnje (gradnja in tehnična oprema, neto) |  2 543 EUR/m² GF (BKP2)
Nagrade |  Best-Architects 11 (2010) srebrna nagrada; nominacija „Gutes Bauen in Liechtenstein"

Tehnični vidiki
Koncept |  Kmečka hiša: vidna masivna konstrukcija iz tramov; Skedenj: toplotna izolacija za obstoječo leseno stoječo konstrukcijo
Obdelava lesa |  XYLO AG, Schaan (LI) / Frommelt Zimmerei und Ing. Holzbau AG, Schaan (LI)
Izvor lesa, certificiranje |  Domači les (CH)
Sledljivost lesa |  Da
Gozdno-lesna veriga vrednosti |  Vsa sodelujoča obrtna podjetja prihajajo Lihtenštajna; eno podjetje iz Vorarlberga (AT)
Standard energetske učinkovitosti |  Zahteve lihtenštajnske gradbene zakonodaje glede prenove
Energetski sistemi |  Novo centralno ogrevanje s pomočjo plinske naprave za ogrevanje vode, dodatno jeklena peč v skednju in restavrirana lončena peč v kmečki hiši
Poraba energije |  45,7 kWh/m²a (poraba energije za ogrevanje)


Regional Wood Circular Economy 100% Wood


Lokacijski načrt Lokacijski načrt Tloris Tloris Prerez Prerez