Edifici residenziali

Condominio Kamorstraße

Costanza, Germania

Vista Ovest 1 | Vista Ovest
L’edificio con struttura in legno a telaio si inserisce perfettamente nel contesto urbanistico, uniformandone l'aspetto.
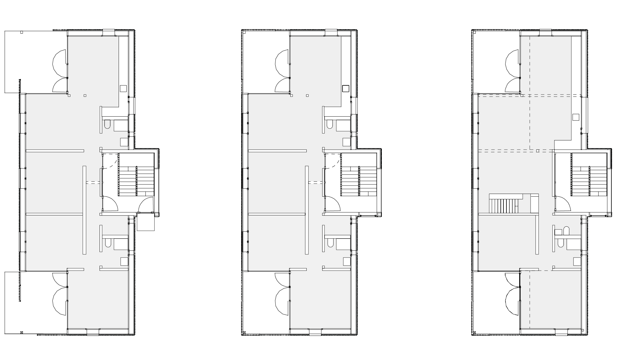
Progetto: Questo edificio a destinazione abitativa si trova a Costanza, nelle immediate vicinanze delle rive del lago. Il suo volume compatto e il suo tetto a doppio spiovente riprendono le caratteristiche delle ville dei dintorni. Le stanze, quadrate e orientate a Sud, si prestano a tutte le funzioni e sono disposte in modo che sia possibile separare una parte dell’abitazione per adibirla ad esempio ad ufficio. Alle due stanze con il bagno si può in questo caso accedere separatamente dal vano scale. Su tutti e tre i piani, verso il fronte e il retro dell’edificio, un’ampia loggia forma una spazio esterno privato coperto. Queste “stanze d’angolo all‘aperto” aggiuntive offrono begli scorci verso il lago e un ampliamento dello spazio per i mesi estivi.

Legno: Le campate ridotte necessarie nell’edificio hanno permesso di realizzare la struttura a traliccio in legno strutturale pieno e tutti gli elementi d’arredo interni in legno massiccio (abete bianco della Foresta Nera). Il “freno vapore” è stato realizzato non per mezzo di una pellicola, ma di un rivestimento in legno tagliato in diagonale, i cui giunti a coda di rondine provvedono a renderlo ermetico.

Energia: L’edificio soddisfa gli attuali requisiti di legge (EEWärmeG) grazie al rivestimento termico e all’impianto termico a gas a condensazione.
Costruzione del piano sottotetto 2 | Costruzione del piano sottotetto
Loggia del piano sottotetto 3 | Loggia del piano sottotetto
Soppalco 4 | Soppalco
19m
Informazioni di base
Anno di realizzazione |  2017
Committente |  Maria Kollmann, Costanza (DE)
Progetto architettonico |  Maria Kollmann Architekten BDA Stadtplaner, Costanza (DE)
Progetto strutturale |  Fischer und Leisering Ingenieurgesellschaft mbH, Costanza (DE)
Tempi di realizzazione |  10 mesi
Numero di piani |  3 + piano soppalcato
Dimensioni del lotto |  484 m²
Superficie lorda complessiva |  651 m²
Costi di costruzione (netti) |  1 060 €/m² BGF
Riconoscimenti |  Holzbaupreis Baden-Württemberg 2018 (premio); Beispielhaftes Bauen 2018, Architektenkammer Baden-Württemberg

Aspetti tecnici
Concetto  |  Pareti: struttura con intelaiatura in legno (legno strutturale pieno); soffitto con travi a vista; tetto in legno strutturale pieno; barriera anti-vapore tramite rivestimento diagonale in legno con valore sd 1,2 m
Fornitore struttura in legno |  Werner Ettwein GmbH, Villingen-Schwenningen (DE)
Origine del legno, Certificazione |  Legno di abete bianco massiccio: Foresta Nera del Nord (DE); legno strutturale: Austria (AT); PEFC, FSC
Tracciabilità del legno |  Si (i nomi delle imprese sono noti)
Filiera foresta-legno  |  Imprese locali (costruzione al grezzo, opere tecniche), costruttori in legno provenienti dalla Foresta Nera (60 km di distanza)
Standard di efficienza energetica |  EnEV 2016
Impiantistica |  Impianto a gas a condensazione
Consumo energetico |  56 kWh/m²a (fabbisogno termico)
Trasmittanza termica Pareti | Tetto | Solaio | Serramenti (W/(m²K)) |  0,17 | 0,16 | – | Finestre in legno con vetro triplo


Regional Wood Cost Saving 100% Wood


Planimetria generale dell'area Planimetria generale dell'area Piante Piante Particolare impermeabilizzazione all'aria rivestimento in legno in diagonale Particolare impermeabilizzazione all'aria rivestimento in legno in diagonale