Edifici ad uso commerciale

Stalla per le pecore

Orcières, Francia

Vista Ovest 1 | Vista Ovest
Dato che, nonostante un incendio, la stalla precedente non era crollata e le pecore avevano potuto essere salvate tutte, il committente ha voluto che anche la nuova stalla fosse ricostruita in legno.
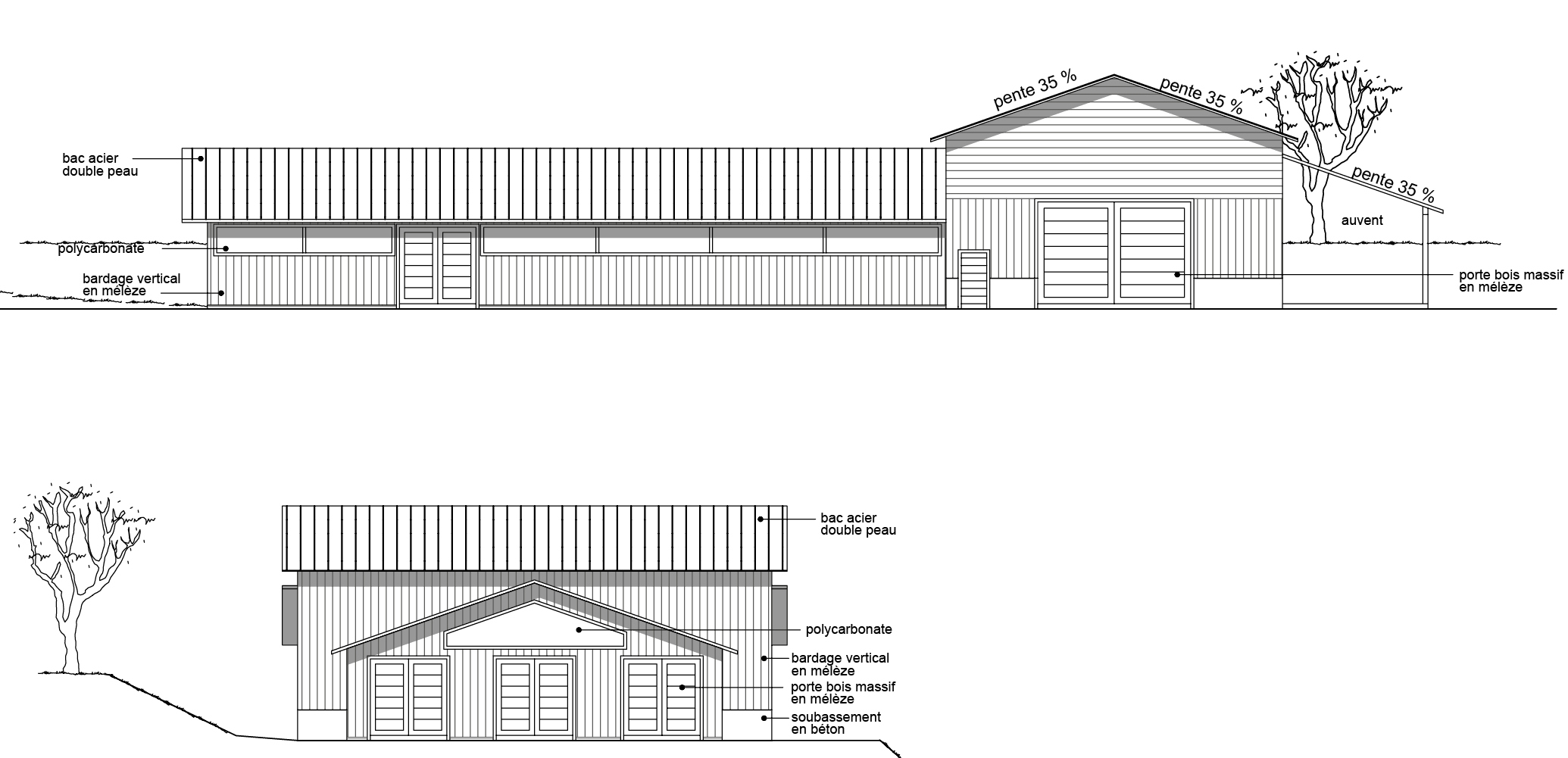
Progetto: Con le sue linee orizzontali e il volume compatto l’edificio si inserisce bene nel paesaggio alpino. Sotto una struttura in legno massiccio con giunti stabili si sviluppano lo stabbio degli animali, il deposito del fieno e un ricovero attrezzi. Il progetto mira a ottenere buone condizioni climatiche per gli animali sia d’inverno sia d’estate. La leggera inclinazione del tetto e il volume interno limitato contribuiscono a mantenere il calore nell’edificio d’inverno. La stalla deve inoltre sopportare i pesanti carichi (450 kg/m²) dovuti alla neve a 1 700 m sopra il N.N. L’edificio è orientato a Sud e a Est per proteggere dal vento.

Legno: Grazie alle travi prefabbricate la costruzione in loco ha potuto essere conclusa molto rapidamente. Si tratta del primo edificio agricolo costruito con legno regionale Bois des Alpes™. Su fondamenti in calcestruzzo sono state costruite una struttura portante in abete bianco massiccio per lo stabbio e una struttura portante in legno lamellare a strati incrociati per il ricovero destinato a fieno e attrezzi. La facciata è in larice della regione, con la sua caratteristica colorazione. Il tetto a due falde è rivestito con una copertura in metallo a doppia aggraffatura, la coibentazione è in poliestere riciclato (spessore 2x75 mm). La luce entra attraverso le lastre semitrasparenti in policarbonato.
Vista Sud 2 | Vista Sud
Stalla delle pecore 3 | Stalla delle pecore
Fienile 4 | Fienile
Incendio della vecchia stalla 5 | Incendio della vecchia stalla
La vecchia stalla prima dell’incendio 6 | La vecchia stalla prima dell’incendio
12m
Informazioni di base
Anno di realizzazione |  2017
Committente |  Michel Giraud-Missier, Orcières (FR)
Progetto architettonico |  Atelier d'Architecture Giacomoni, L’Escale (FR)
Progetto strutturale |  E Tech Bois Laurent Anglesio, Ingénieur Bois, Sisteron (FR)
Tempi di realizzazione |  6 mesi
Numero di piani |  1
Superficie lorda complessiva |  1 000 m²
Costi di costruzione (netti) |  669 €/m²
Riconoscimenti |  Grand Prix de la Construction Durable 2017 (Démarche qualité Hautes Alpes Naturellement)

Aspetti tecnici
Concetto  |  Struttura portante in legno massiccio/ legno lamellare a strati incrociati
Fornitore struttura in legno |  Alpes Méditerranée Charpente, Saint Crépin (FR)
Origine del legno, Certificazione |  Legno certificato Bois desAlpes™ (FR), PEFC
Tracciabilità del legno |  Si (legno certificato Bois des Alpes™)
Filiera foresta-legno  |  Si, l‘uso di legno locale contribuisce a rivitalizzare l’industria del legno locale
Impiantistica |  Buona coibentazione rispetto agli edifici solitamente destinati al ricovero animali


Regional Wood Cost Saving 100% Wood


Planimetria generale Planimetria generale Facciata Sud / Facciata Ovest Facciata Sud / Facciata Ovest