Edifici pubblici

Casa sociale di Caltron

Cles, Italia

Vista Nord 1 | Vista Nord
Una nuova casa sociale per il piccolo centro di Caltron reinterpreta l’architettura tradizionale e si riallaccia in modo riuscito al paesaggio.
Progetto: Per la costruzione di una nuova casa sociale nella frazione di Caltron il comune di Cles ha indetto un concorso per giovani architetti e architette sotto i 35 anni. Il progetto vincitore ha convinto grazie a un generoso spazio per incontri e manifestazioni per tutte le fasce d’età e con la sua collocazione, che ne fa l’anello di congiunzione tra il paese e il paesaggio circostante.

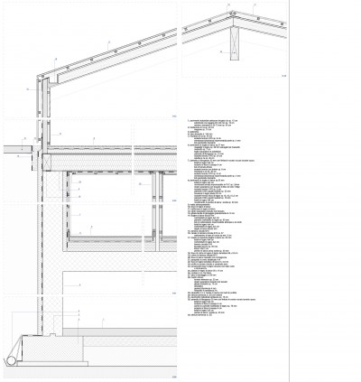
Legno: L’aspetto esteriore dell’edificio riprende in tutto e per tutto le suggestioni delle vicine piantagioni di meli, che dominano il paesaggio. Le perline di facciata sono disposte in verticale e i pilastri di legno lamellare a strati incrociati formano a loro volta una sequenza significativa. Il piano interrato in calcestruzzo, che entra nella montagna, accoglie parcheggi e impianti, mentre i piani superiori quasi esclusivamente in legno di larice costruiti sulla sua base ospitano gli spazi comunitari veri e propri. 

Energia: Il sottotetto non è riscaldato, dal lato che dà verso valle le vetrate arrivano solo all’altezza del parapetto e lo spazio acquista un piacevole carattere arioso. L’architetto si riallaccia in questo modo alla tradizione locale che prevede una base in pietra, una struttura in legno e un sottotetto aperto. I pannelli solari installati sul vicino palazzetto dello sport forniscono elettricità all’edificio.
Uno spazio aperto per la comunità 2 | Uno spazio aperto per la comunità
Vista attraverso l’edificio 3 | Vista attraverso l’edificio
Collocazione nel comune 4 | Collocazione nel comune
33m
Informazioni di base
Anno di realizzazione |  2015
Committente |  Comune di Cles (IT)
Progetto architettonico |  Mirko Franzoso, Cles (IT)
Progetto strutturale |  Legno: Sergio Marinelli (IT)
Tempi di realizzazione |  18 mesi
Numero di piani |  2
Dimensioni del lotto |  1 120 m²
Superficie lorda complessiva |  510 m²
Costi di costruzione (netti) |  750 000 €
Riconoscimenti |  Tra gli altri: Young Italian Architect 2016 (primo premio), Constructive Alps (terzo premio)

Aspetti tecnici
Concetto  |  Telaio in legno lamellare a strati incrociati
Fornitore struttura in legno |  Fratelli Borghesi, Cles (IT)
Origine del legno, Certificazione |  Austria (AT)
Standard di efficienza energetica |  Certificazione energetica APE classe A
Consumo energetico |  37,44 kWh/m²a (fabbisogno termico)
Trasmittanza termica Pareti | Tetto | Solaio | Serramenti (W/(m²K)) |  0,150 | 0,108 | 0,179 | 1,223


Regional Wood 100% Wood


Planimetria generale Planimetria generale Pianta piano terra, sezione Pianta piano terra, sezione Particolare Particolare