Holzbauoffensive BW

Holz-Hybrid-Haus

Heilbronn, Baden-Württemberg

Der neue Stadtbaustein an der Uferpromenade 1 | Der neue Stadtbaustein an der Uferpromenade
Das Holz-Hybrid-Haus verbindet als attraktiver neuer Stadtbaustein größtmögliche Energieeffektivität mit maximaler Raumflexibilität.
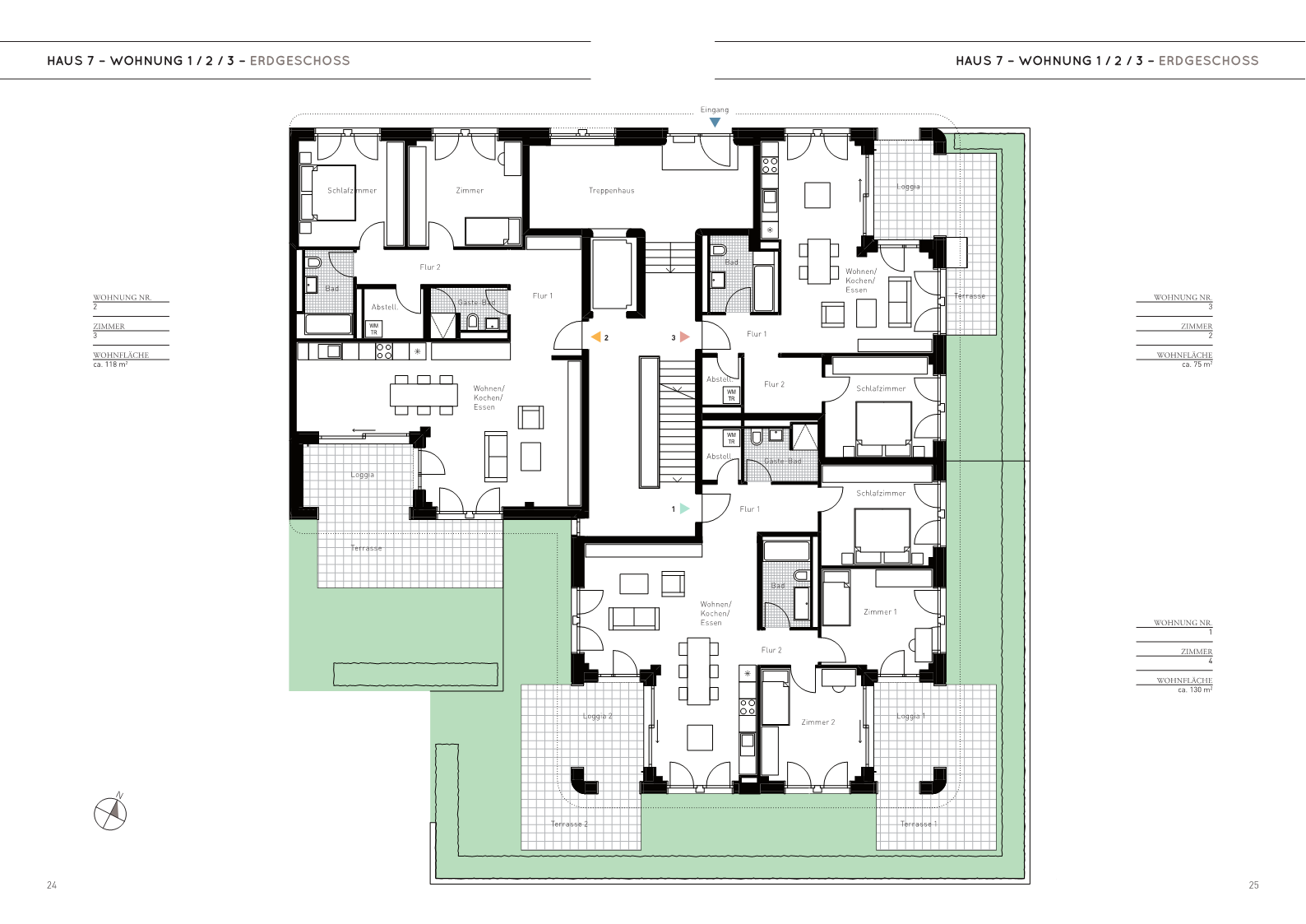
Entwurf: Die Stadtausstellung im Rahmen der Bundesgartenschau 2019 ist der Grundstein des neuen Heilbronner Stadtteils Neckarbogen. Das Holz-Hybrid-Haus im „Wohnquartier der Vielfalt“ wurde beim Wettbewerb mit einem 1. Platz ausgezeichnet. Es entstanden Eigentumswohnungen von 2- bis 5- Zimmern mit Dachterrasse. Ein großzügiger Eingangsbereich führt in das zentrale, mit Oberlichtern belichtete Treppenhaus, welches pro Etage drei Wohnungen erschließt. 

Holz: Die positiven Eigenschaften der Baustoffe Holz und Beton werden in der Verbundkonstruktion für den Geschosswohnungsbau optimiert. Die sehr ruhige Fassade ist mit Holzschindeln gestaltet. Mit geschwungenen Geschossabschlüssen wird das Gebäude horizontal gegliedert. Das Besondere an diesem Detail ist der Holzbau, der im dreidimensionalen Raum gerundet um die Ecke geht und dazu noch nach vorne gewölbt ist. Hier verbindet sich die technische Notwendigkeit der Verhinderung des Brandüberschlags mit architektonisch ansprechender Optik und Gliederung der Fassade. 

Kostengünstig bauen: Durch die gewählte Skelettkonstruktion können Wohnungszuschnitt und -größe flexibel gestaltet werden. Mit der wertvollen Wohnfläche wird so sparsam umgegangen und dem dauernd steigenden Wohnflächenbedarf entgegengewirkt.
Die Stadtausstellung auf dem BUGA-Gelände 2 | Die Stadtausstellung auf dem BUGA-Gelände
Eckausbildung 3 | Eckausbildung
Grundinformation
Fertigstellung |  2018
Bauherrschaft |  Kruck + Partner Wohnbau und Projektentwicklung GmbH u0026 Co. KG, Heilbronn
Architektur |  Fink + Jocher, Gesellschaft von Architekten und Stadtplanern mbH, München
Tragwerksplanung |  Kraft Baustatik – Dipl.-Ing. Willy Kraft, Besigheim
Bauzeit |  18 Monate
Geschosszahl |  4 + Untergeschoss
Grundstücksgröße |  681 m²
Bruttogrundfläche |  2.738 m²
Baukosten, netto (KG300 + 400) |  1.580 € / m² BGF
Fotografie |  Roland Halbe, Stuttgart

Technische Aspekte
Konzept |  Stahlbetonskelettbau mit Holzrahmenfertigteilwänden, Schindelfassade
Holzbaufirma |  SCHLOSSER plan.PROJEKT GmbH u0026 Co. KG, Jagstzell
Herkunft des Holzes, Zertifizierung |  Alpenraum, PEFC
Wertschöpfungskette Holz |  es wurden lokale Handwerker beschäftigt
Energiestandard |  EnEV2016 / KfW 55
Technische Ausstattung |  Regenerative Kraft-Wärme-Kopplung; biogasbetriebenes Blockheizkraftwerk in Kombination mit einem Gas-Brennwertgerät für Heizung und Brauchwasser; Nahwärmenetz
Energieverbrauch |  45,9 kWh/m²a (Endenergiebedarf)
U-Wert Wand | Dach | Boden | Fenster in W/(m²K) |  0,14 | 0,2 | 0,18 | 0,6


Regional Wood Cost Saving Energy Efficiency


Lageplan Lageplan Konstruktionsdetail geschwungener Geschossabschluss Konstruktionsdetail geschwungener Geschossabschluss Geschossabschluss im Bau Geschossabschluss im Bau Grundriss Erdgeschoss Grundriss Erdgeschoss