Umbau und Sanierung

Passeggiata dei Castani

Bozen/Bolzano, Italien

Wohnanlage während der Sanierung 1 | Wohnanlage während der Sanierung
Multifunktionale und vorgefertigte Fassadenelemente aus Holz brachten eine Wohnanlage schnell und günstig auf den Niedrigstenergiestandard.
Entwurf: Im Rahmen des Projektes “Sinfonia – Bozen/Bolzano Smart City“ wurde an einer Anlage mit 72 Sozialwohnungen eine neue Methode erprobt, ein Bestandsgebäude auf den anspruchsvollen Standard eines Niedrigstenergiegebäudes (EU nearly zero energy building, nZEB) zu heben.

Holz: Das Konzept beruht auf dem Einsatz von multifunktionalen, vorgefertigten Holzelementen mit integrierten Fenstern und Jalousien sowie einer fertigen Fassadenoberfläche (Aluminium und HP-Laminat). Dadurch konnte der Zeitbedarf für Produktion, Qualitätskontrolle und Bau um 60% gesenkt werden. Es wurden 225 m² Fassadenmodule pro Tag angebracht. Die Mieter konnten aufgrund der geringen Emissionsbelastung während des gesamten Renovierungszeitraums in ihren Wohnungen bleiben.

Energie: Das Projekt konnte die ihm gesetzten Ziele erreichen. Durch die neue Wärmedämmung wurde der Heizwärmebedarf um den Faktor 10, von 238 kWh/m²a auf 22,5 kWh/m², gesenkt. Auch die CO2-Emissionen des Gebäudes konnten auf 6 kg/m²a reduziert werden. Neben den wärmedämmenden Holzmodulen tragen zu diesem Erfolg auch eine Photovoltaik- und eine thermische Solaranlage auf dem Dach, ein geothermisches Wärmepumpensystem sowie eine mechanische Lüftungsanlage bei.
Neue Fassadenelemente 2 | Neue Fassadenelemente
Wärmedämmung in der Vorfertigung 3 | Wärmedämmung in der Vorfertigung
Anbringung der Fassadenelemente 4 | Anbringung der Fassadenelemente
32m
Grundinformation
Fertigstellung |  2016
Bauherrschaft |  Stadt Bozen / Comune di Bolzano
Architektur |  Studio Mellano Associati, Turin (IT); Alberto Sasso, Turin (IT); ARCH+MORE Gerhard Kopeinig, Velden am Wörthersee (AT); Manuel Benedikter, Bozen/Bolzano (IT)
Tragwerksplanung |  Giuseppe Glionna, Turin (IT); Massimo Vettori, Bozen/Bolzano (IT);
Bauzeit |  12 Monate je Gebäude
Geschosszahl |  5
Grundstücksgröße |  6 400 m²
Bruttogrundfläche |  7 456 m²
Baukosten, netto (KG300 + 400) |  630 €/m²

Technische Aspekte
Konzept |  Umhüllung des Bestandsgebäudes (Stahlbeton und Mauerwerk) mit vorgefertigten Holzelementen
Holzbaufirma |  Carron Bau Srl/Gmbh, Bozen/Bolzano (IT); Aster Holzbau Gmbh, Jenesien/San Genesio Atesino (IT)
Herkunft des Holzes, Zertifizierung |  FSC/PEFC
Wertschöpfungskette Holz |  Ausschließlich ortsansässige Baufirmen
Energiestandard |  Niedrigstenergiegebäude KlimaHaus A
Technische Ausstattung |  Geothermie, Wärmepumpen, mechanische Belüftung mit Wärmerückgewinnung, Photovoltaik, thermische Solaranlage
Energieverbrauch |  22,5 kW/m²a (Heizwärmebedarf)
U-Wert Wand | Dach | Boden | Fenster in W/(m²K) |  0,13 | 0,07 | 0,14 | 0,74


Cost Saving Energy Efficiency 100% Wood


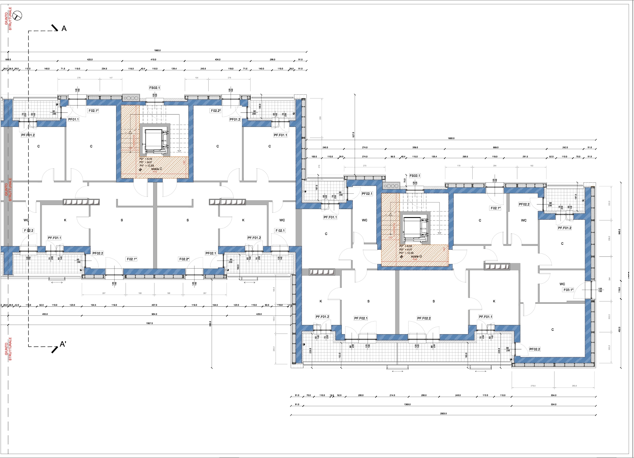
Lageplan Lageplan Fassade Fassade Grundriss (Auszug) Grundriss (Auszug) Detail: Fassade Detail: Fassade