Bürogebäude

Gewerbehalle Sääga

Balzers, Liechtenstein

Ansicht von Norden 1 | Ansicht von Norden
Eine Schreinerei teilt sich ihren neuen Holzbau mit anderen Gewerbeeinheiten in einem flexibel organisierten Gebäude.
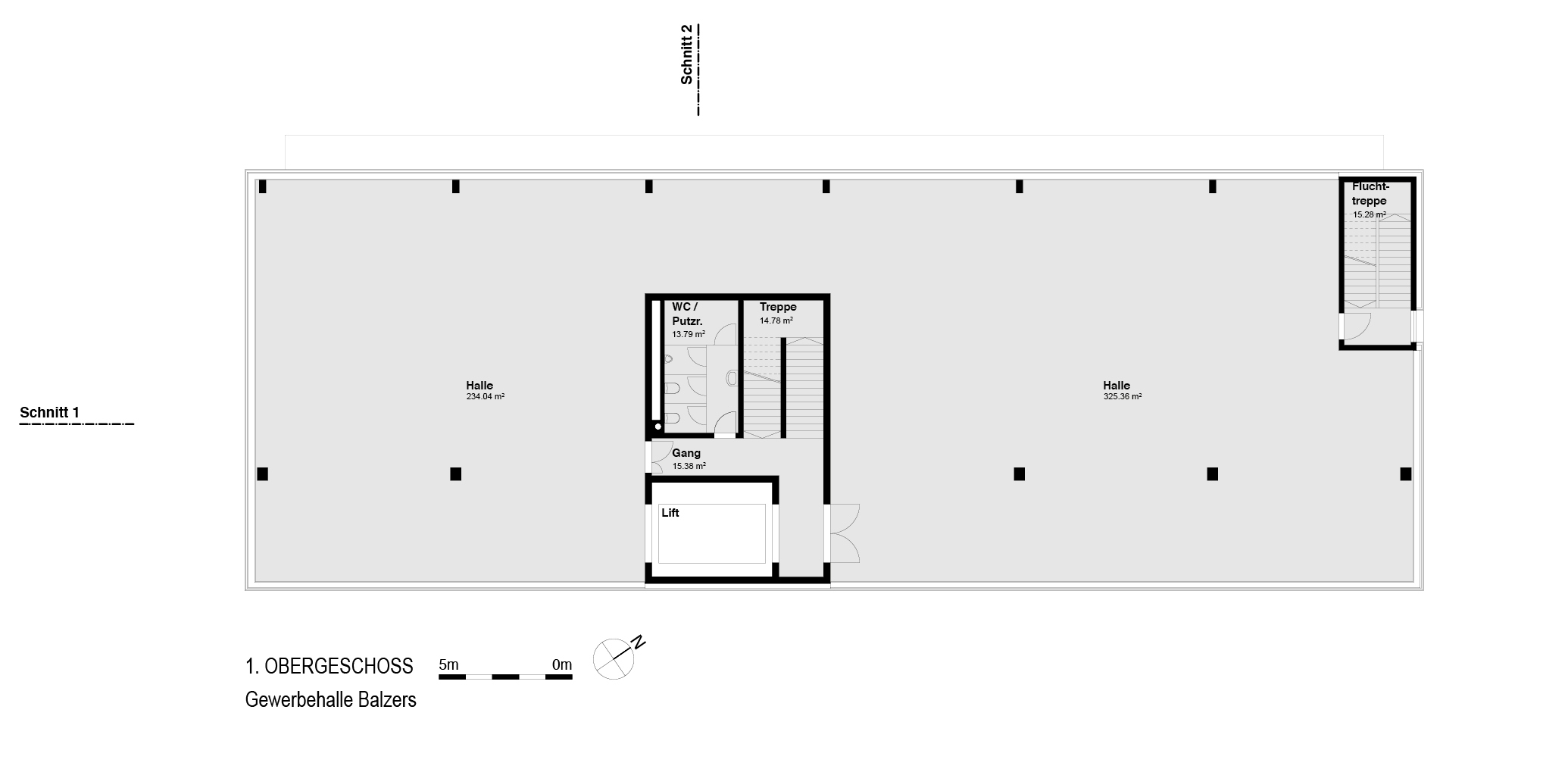
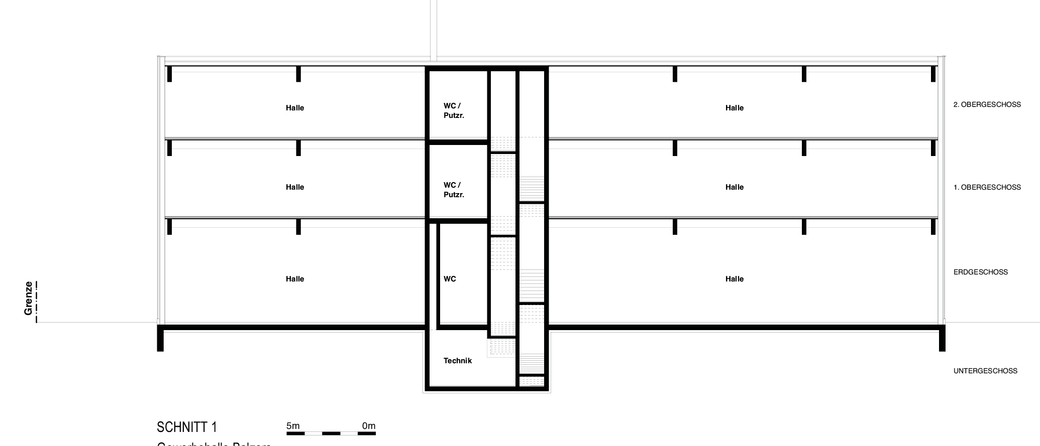
Entwurf: Die Gewerbehalle liegt an der Landstraße in Balzers. Der Baukörper ist parallel zum angrenzenden Kanal orientiert und wird auch von dieser Seite erschlossen. Eine Schreinerei, ein Fitnesscenter und ein Architekturbüro teilen sich die Räumlichkeiten. Die Grundrissstruktur entspricht dem Konzept des universellen freien Raums, das eine hohe Flexibilität in der Nutzung des Gebäudes garantiert. Im starken Kontrast zum Holzbau wurde das Treppenhaus monolithisch in Sichtbeton ausgeführt. Die Hallen im Untergeschoss weisen eine klare, industrielle Funktion auf: hier befindet sich die Schreinerei mit Lager, Werkstatt und Showroom.

Holz: Als Konstruktionssystem wurde ein Holzelementbau gewählt, welcher sich positiv auf Kosten und Zeitaufwand ausgewirkt hat und dem Arbeitsmaterial des Bauherrn entspricht. Als Fassade fungiert eine vertikale Holzverkleidung, die mit ihrer feinen Detaillierung wie ein Möbel der Schreinerei wirkt. Die Fassade wird durch Trennlinien gegliedert und die Fensterbänder werden durch ein umlaufendes Blech betont. Die Holzelementdecken sind mit Hartbetonbelag ausgeführt. Die große Auskragung der Obergeschosse wird durch ein innenliegendes Haupttragwerk ermöglicht, die vorgesetzten Rahmenelemente der Fassade sind tragend und aussteifend.
Zugang Schreinerei 2 | Zugang Schreinerei
Halle im Obergeschoss 3 | Halle im Obergeschoss
Erschließungskern 4 | Erschließungskern
41m
Grundinformation
Fertigstellung |  2011
Bauherrschaft |  Anton Vogt Schreinerei AG, Balzers (LI)
Architektur |  Patrik Beck, ARCHITEKTUR PITBAU, Triesenberg (LI)
Tragwerksplanung |  Xylo AG, Schaan (LI); IPB Pannungen AG, Balzers (LI)
Bauzeit |  48 Monate
Geschosszahl |  3
Grundstücksgröße |  2 151 m²
Bruttogrundfläche |  1 814 m²
Baukosten, netto (KG300 + 400) |  1 584 €/m²
Auszeichnungen |  Liechtensteiner Holz-Oskar 2018 (Nominierung)

Technische Aspekte
Konzept |  Holzelementwand, Holzelementdecken, Treppenhaus in Sichtbeton
Holzbaufirma |  Frommelt Zimmerei und Ing. Holzbau AG, Schaan (LI)
Herkunft des Holzes, Zertifizierung |  Österreich (Fassade), Schweiz (Massivholz)
Nachverfolgbarkeit des Holzes |  Ja (Firmen wurden genannt)
Wertschöpfungskette Holz |  Es wurden nur lokale Handwerker beschäftigt
Energiestandard |  Minergie
Technische Ausstattung |  Hackschnitzelheizkessel (Heizung + Warmwasser)
Energieverbrauch |  34,4 khW/m²a (Heizwärmebedarf)
U-Wert Wand | Dach | Boden | Fenster in W/(m²K) |  0,17 | 0,17 | 0,3 | 1,1-1,4


Regional Wood Cost Saving


Grundriss EG Grundriss EG Grundriss 1. OG Grundriss 1. OG Schnitt Schnitt