Grundinformation
Fertigstellung |
2016
Bauherrschaft |
Bau- und Sparverein Ravensburg eG, Ravensburg
Architektur |
architekturlokal Selbach | Kneer u0026 Partner freie Architekten mbB, Ravensburg
Tragwerksplanung |
Bernauer und Pfoser Ingenieure im Bauwesen, Überlingen
Bauzeit |
6 Monate Gründung/Stahlbeton, 8 Monate Holz- und Ausbau
Geschosszahl |
4 + Tiefgarage
Grundstücksgröße |
1.559 m²
Bruttogrundfläche |
2.720,2 m²
Baukosten, netto (KG300 + 400) |
963 € /m² BGF (A/B)
Fotografie |
Jürgen Kneer / architekturlokal, Ravensburg
Technische Aspekte
Konzept |
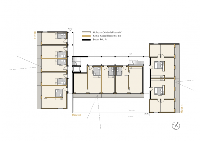
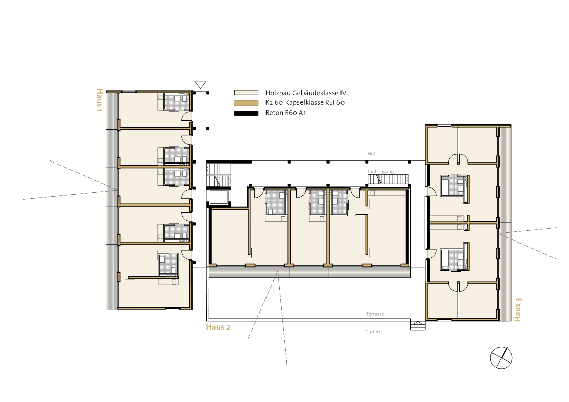
Holztafelbau mit Kapselklasse K260 (Gebäudeklasse IV); Brettsperrholzhybriddecken (8cm Aufbeton und 12cm Brettsperrholzelement); Holzdecke in Sichtqualität
Holzbaufirma |
Maier Holzbau GmbH u0026 Co. KG, Wangen
Herkunft des Holzes, Zertifizierung |
Alpenraum (Allgäu / Vorarlberg), PEFC (Brettsperrholz)
Wertschöpfungskette Holz |
baustellennahe, regionale Verarbeitung und Fertigung
Energiestandard |
KfW Effizienzhaus 40 - Nullenergiehaus
Technische Ausstattung |
Regenerative Quellen: Geothermie, PV-Anlage. Wärmeerzeugung durch Sole/Wasser-Wärmepumpe mit Gasbrennwertherme zur Deckung von Spitzenlasten (Warmwasserbereitung), Pufferspeicher 2.000l. Lüftung durch Zu- und Abluftanlage mit Wärmerückgewinnung über Kreuzstromwärmetauscher. Mieterstrommodell mit örtlichem Energieversorger
Energieverbrauch |
< 15 kWh/m²WFa
U-Wert Wand | Dach | Boden | Fenster in W/(m²K) |
0,16 | 0,089-0,1 | 0,12 | 0,75
Der
Alpenraum verfügt über enorme Waldflächen, die überwiegend nachhaltig bewirtschaftet
und entsprechend zertifiziert sind. Die Nutzung von regionalem Holz spart nicht
nur Transportwege gegenüber dem Import von Holz aus dem europäischen oder gar außereuropäischen
Raum, mitunter aus zweifelhafter Quelle, sondern sichert und fördert insbesondere
die regionale Wirtschaft (Handwerk, Baugewerbe, Produktionsbetriebe, Forst).
Projekte, die mit diesem Piktogramm versehen sind, nutzen nach eigenen Angaben
(nahezu) ausschließlich Holz aus der EUSALP-Region.
Durch
seine hervorragende Eignung für die industrielle Vor- und Serienfertigung
lassen sich beim Einsatz von Holz oft Kostenvorteile erzielen. Eine gewisse
Unabhängigkeit von Witterungsverhältnissen sowie die regionale Produktion und
verkürzte Bauzeiten können ein Bauvorhaben kosteneffizienter machen.
Projekte, die mit diesem Piktogramm versehen sind, weisen Nettobaukosten für
Konstruktion und Technische Anlagen (Kostengruppen
300 und 400, DIN 276-1) von maximal 2.000 Euro pro Quadratmeter BGF
(Bruttogrundfläche) auf.
Die
natürlichen Dämmeigenschaften von Holz qualifizieren das Material für die
Erreichung von Energieeffizienzzielen. Bei geringerer Wandstärke lassen sich
oft dieselben oder bessere Werte erzielen als bei Materialien wie etwa Stein
oder Beton. Holz ist aber nur ein besonders geeigneter Baustoff, der im Kontext
mit einer umfassenden qualifizierten Planung energieeffiziente Gebäude
ermöglicht.
Projekte, die mit diesem Piktogramm versehen sind, weisen einen Heizwärmebedarf
von maximal 30 kWh pro Quadratmeter und Jahr auf.
Holz
einzusetzen bedeutet nicht, dass keine anderen Materialien mehr verwendet
werden. Hybridbauweisen etwa mit Holz und Stahlbeton haben sich bewährt und
vereinen die Vorteile der verschiedenen Baustoffe. Konstruktiv ist Holz
geeignet, dass Tragwerke von erheblicher Höhe und Spannweite daraus erstellt
werden können.
Projekte, die mit diesem Piktogramm versehen sind, verfügen über ein rein
hölzernes Tragwerk ab Ebene 0; erdberührte Untergeschosse aus (Stahl-) Beton
und Geschossdecken in Holz-Beton-Hybridbauweise sind dabei aber möglich.
Lageplan
Regelgrundriss Haus 2
Schnitt