Holzbauoffensive BW

Seniorenzentrum

Frickingen, Baden-Württemberg

Das Seniorenzentrum in der Ortsmitte 1 | Das Seniorenzentrum in der Ortsmitte
Die Besonderheit des Bauprojekts ist der Bauherr - eine Gruppe ortsansässiger Senioren, die mit Unterstützung der Gemeinde eine Genossenschaft gründeten.
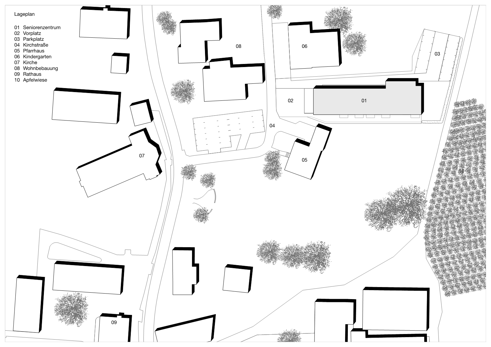
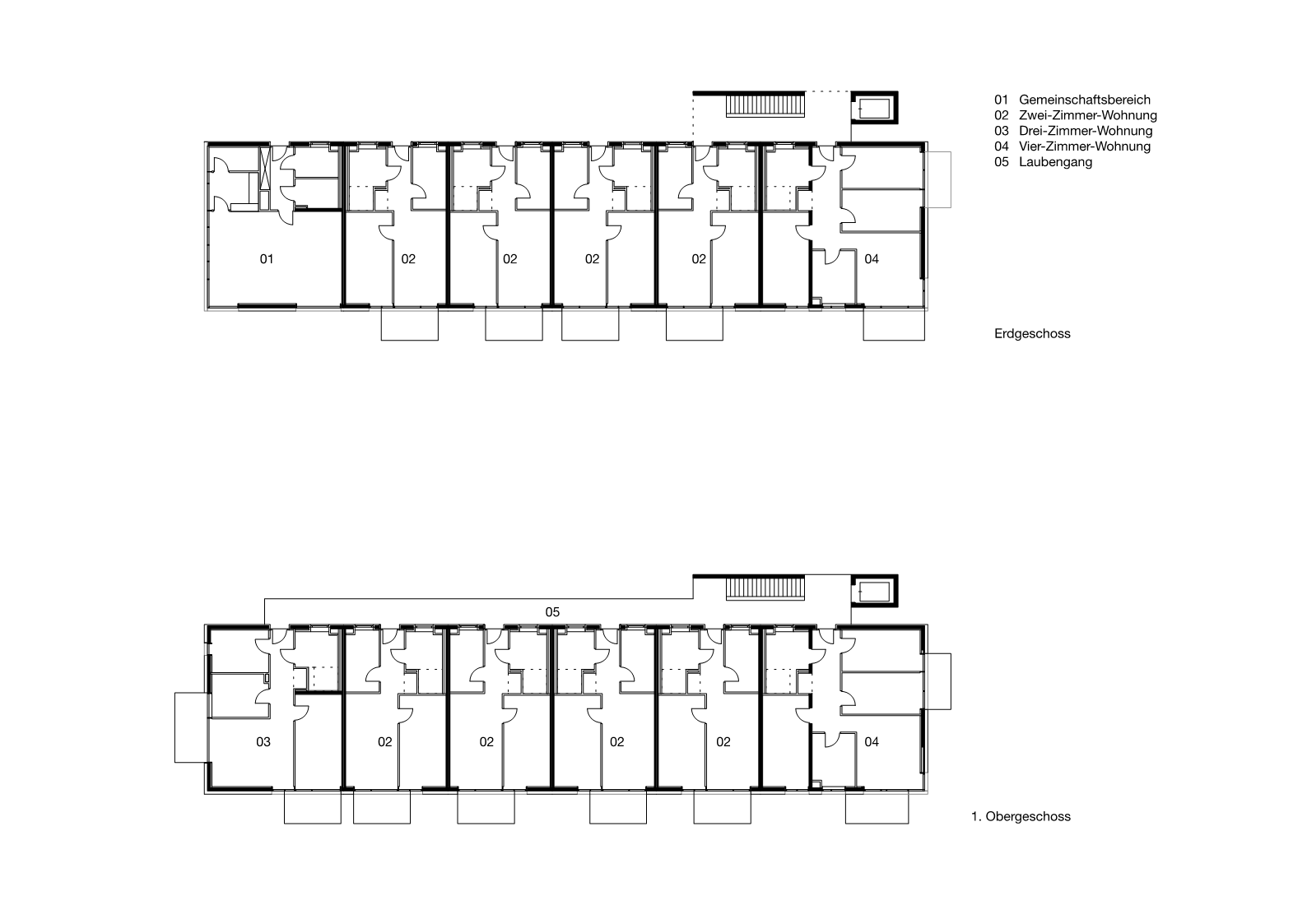
Entwurf: Mit dem neuen Seniorenzentrum erhält die Ortsmitte, bestehend aus Kirche, Rathaus und dem denkmalgeschützten Peterhauser Hof eine weitere markante, architektonische Ergänzung. Der Baukörper ist zwischen Kindergarten und Pfarrhaus platziert und gegenüber den Nachbargebäuden leicht zurückgesetzt. Dem Gemeinschaftraum im Erdgeschoss wird so ein Vorplatz als Freibereich zugeordnet. Der Typus eines Gebäudes mit Laubengangerschließung ermöglicht ein Durchwohnen mit Fenstern in beiden Richtungen. 

Holz: Die Außenwandflächen sind mit unbehandelten Lärche-Profilhölzern verkleidet. Durch den Wechsel in der Ausrichtung – horizontal und vertikal – entsteht ein subtiles Spiel der Oberflächen und damit eine feine Gliederung der Fassaden. Die ebenfalls unbehandelten Fensterprofile sind aus derselben Holzart. 

Kostengünstig bauen: Der Laubengangtypus mit Fluren und Treppen im Freien reduziert maßgeblich den beheizten umbauten Raum und erzielt so einen kompakten, energetisch optimierten Baukörper, was sich günstig auf die Kosten auswirkt. Eine Förderung erfolgte im Programm KfW Effizienzhaus 55.
Ansicht Süd 2 | Ansicht Süd
Ansicht West 3 | Ansicht West
Aufenthaltsraum zum Platz 4 | Aufenthaltsraum zum Platz
Grundinformation
Fertigstellung |  2016
Bauherrschaft |  Seniorenzentrum Frickingen eG, Frickingen
Architektur |  Glück + Partner GmbH Freie Architekten BDA, Stuttgart
Tragwerksplanung |  merz kley partner, Dornbirn (AT)
Bauzeit |  12 Monate
Geschosszahl |  3
Grundstücksgröße |  1.876 m²
Bruttogrundfläche |  2.478 m²
Baukosten, netto (KG300 + 400) |  1.087 € / m² BGF
Auszeichnungen |  Beispielhaftes Bauen Bodenseekreis
Fotografie |  Bilder: Roland Halbe, Stuttgart

Technische Aspekte
Konzept |  Hybrid-Konstruktion aus tragenden Bauteilen in Stahlbeton und hochgedämmter Holzrahmenkonstruktionen als Außenhaut
Holzbaufirma |  oa.sys baut gmbh, Alberschwende (AT)
Herkunft des Holzes, Zertifizierung |  Hölzer und Holzwerkstoffe zum überwiegenden Teil aus der Alpenregion bzw. aus der D/A/CH-Region
Nachverfolgbarkeit des Holzes |  Für die Hölzer liegen Zertifizierungen vor bzw. die Vertriebsfirmen sind zertifiziert, somit kann Herkunftsregion eingegrenzt werden
Wertschöpfungskette Holz |  Das Bauvorhaben wurde als GU-Projekt länderübergreifend mit einer Holzbaufirma aus Österreich und lokalen Firmen aus dem Bodenseekreis realisiert
Energiestandard |  KfW 55
Technische Ausstattung |  Fernwärme über HackschnitzelheizwerkPV-Anlage
Energieverbrauch |  15,5 kWh/m²a
U-Wert Wand | Dach | Boden | Fenster in W/(m²K) |  0,21 | 0,12 | 0,12 | 0,8


Regional Wood Cost Saving Energy Efficiency


Lageplan Lageplan Grundrisse Grundrisse