Öffentliche Gebäude

Schmuttertal-Gymnasium

Diedorf, Deutschland

Blick auf den Schulhof 1 | Blick auf den Schulhof
Das Schmuttertal-Gymnasium – eine angenehme und beispielgebende Umgebung für Kinder, die mehr Energie erzeugt, als sie benötigt.
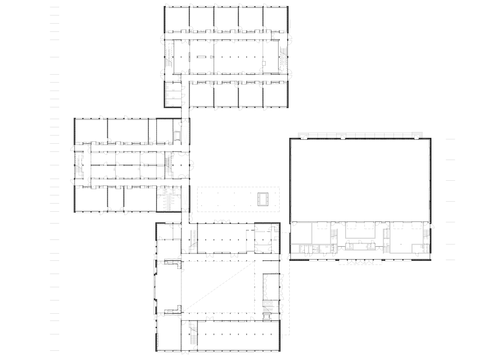
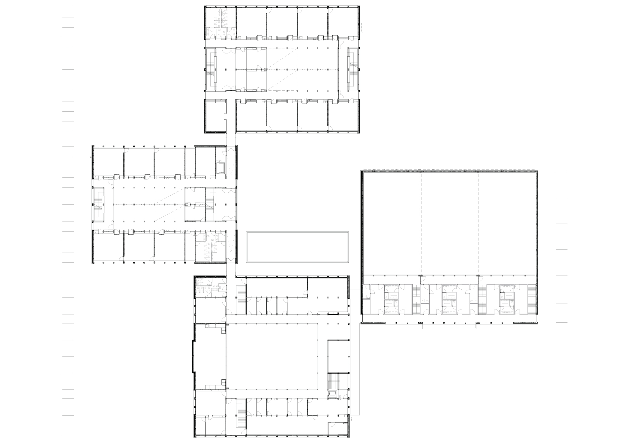
Entwurf: Zwei Klassenhäuser, eine Aula und eine Dreifachsporthalle gruppieren sich um einen Hof und bieten Platz für rund 900 Schüler. Das Schmuttertal-Gymnasium ist eine Schule mit Modellcharakter. Vielfältig zu nutzende Räume bieten Platz für selbständiges Lernen, die klare Struktur des Holzskelettbaus erlaubt es, auch in Zukunft auf neue pädagogische Konzepte zu reagieren.

Holz: Die Gebäude sind in Holzbauweise gefertigt, die unterkellerten Bereiche sowie Nebenräume aus Stahlbeton. Die Obergeschosse und Dachkonstruktionen sind mit hohem gestalterischem Anspruch konzipiert, Dachstuhl und Deckenbalken bleiben als tragende Konstruktion sichtbar. Für die Decken wurde eine neue Holz-Beton-Verbundkonstruktion mit 120 mm Ortbeton entwickelt. Sie sorgt für eine optimale Schalldämmung und verbesserte Wärmekapazität. Die Fassaden wurden als senkrecht stehende Holzverschalungen ausgeführt.

Energie: Als Plusenergiehaus erzeugt das Gymnasium mehr Energie, als sein Betrieb benötigt. Die Grundlage dafür bildet eine integrale Planung, die räumliche, statische und technische Aspekte kombiniert. Wie diese zusammenspielen, wird in einem Forschungsprojekt untersucht. Alle Baustoffe wurden vorab auf Schadstofffreiheit und Umweltfreundlichkeit geprüft.
Arbeitsbereiche im 2. Obergeschoss 2 | Arbeitsbereiche im 2. Obergeschoss
Lichthof im 1. Obergeschoss 3 | Lichthof im 1. Obergeschoss
Flurbereich vor den Klassenzimmern 4 | Flurbereich vor den Klassenzimmern
23m
Grundinformation
Fertigstellung |  2015
Bauherrschaft |  Landkreis Augsburg (DE)
Architektur |  Hermann Kaufmann ZT GmbH (AT) & Florian Nagler Architekten GmbH (DE) ARGE „Diedorf“
Tragwerksplanung |  Merz Kley Partner GmbH, Dornbirn (AT)
Bauzeit |  24 Monate, davon Holzbau 6 Monate
Geschosszahl |  3, Turnhalle/Aula: 1
Grundstücksgröße |  48 096 m²
Bruttogrundfläche |  16 046 m²
Baukosten, netto (KG300 + 400) |  1 629 €/m² BGF
Auszeichnungen |  u.a. DGNB Preis Nachhaltiges Bauen 2016 (1. Preis), Bayrischer Energiepreis 2016 (Preis), ÖISS Schulbau-Oscar 2017, Deutscher Architekturpreis 2017 (1. Preis), Deutscher Holzbau Preis 2017 (Preis, Neubau)

Technische Aspekte
Konzept |  Holzskelettbau auf Stahlbetonbodenplatte
Holzbaufirma |  Klassenhäuser und Aula: Kaufmann Bausysteme GmbH, Reuthe (AT); Sporthalle: ZÜBLIN Timber GmbH, Aichach (DE)
Herkunft des Holzes, Zertifizierung |  Größtenteils Österreich (AT)
Energiestandard |  Plusenergiestandard
Technische Ausstattung |  Zwei Pelletkessel (je 100 KW), zwei Pufferspeicher (je 7 500 Liter), Fotovoltaikanlage (440 kWp); Heizung/Kühlung über Fußbodenheizung, weitestmögliche Tageslichtnutzung
Energieverbrauch |  39,7 kWh/m²a (spezifischer Primärenergiebedarf ohne nutzerinduzierte Verbrauche)
U-Wert Wand | Dach | Boden | Fenster in W/(m²K) |  0,40 (Wand gegen Erdreich), 0,12 (Wand gegen außen) | 0,10 (Hauptdach) | 0,40 (Bodenplatte UG), 0,23 (Bodenplatte EG) | 0,80 (Fenster/Außentüren/Oberlichter)


Regional Wood Cost Saving Energy Efficiency 100% Wood


Grundriss Erdgeschoss Grundriss Erdgeschoss Grundriss 1. OG Grundriss 1. OG Grundriss 2. OG Grundriss 2. OG