Umbau und Sanierung

Wohnen in der Scheune

Bohinj, Slowenien

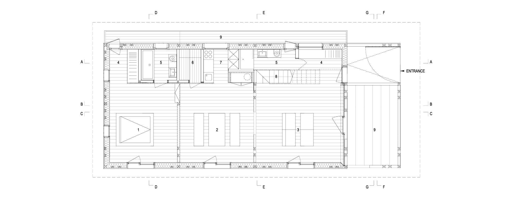
Wohnbereich 1 | Wohnbereich
Eine historische Scheune wurde vom Bauherrn nicht nur vor dem Abbruch gerettet, sondern in ihrer Substanz erhalten und im Inneren attraktiv mit neuem Leben gefüllt.
Entwurf: Die historischen Bauernhöfe und Scheunen der Region Oberkrain standen seit jeher für regionale Holzbautradition und bäuerliche Alltagskultur. In den vergangenen Jahrzehnten waren jedoch viele Gebäude dem Verfall preisgegeben und wurden letztlich durch unspezifische
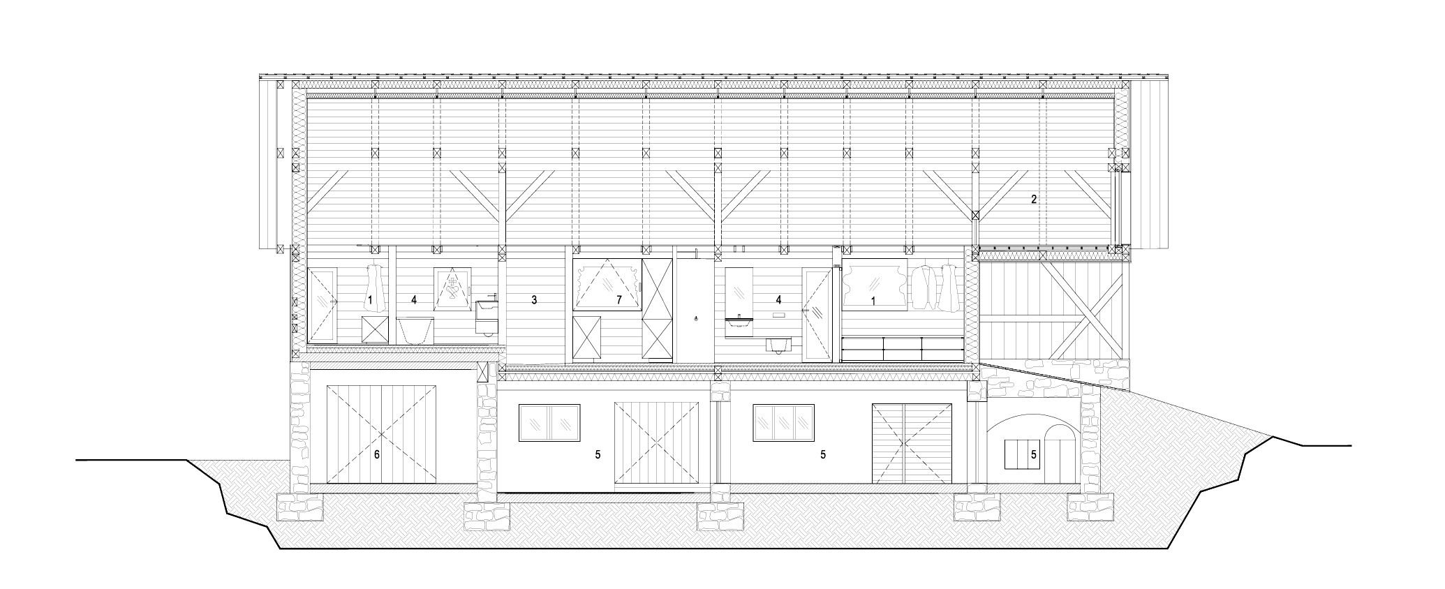
Neubauten ersetzt. Ein privater Bauherr hat einer dieser Scheunen eine neue Zukunft verschafft, indem er sie im Inneren umfassend umgestaltete. Sie beherbergt nun eine Wohnung mit einem offenen Bereich für Wohnen, Essen und Schlafen, während Nebenräume wie Bad, Sauna und Küche in einem eingestellten Raummodul unterkamen. Ein Gästezimmer fand auf der Galerie Platz. Die bestehende Rampe bildet den neuen Eingang. Eine frühere Lagerfläche bietet nun als Veranda einen grandiosen Blick auf die Alpen.

Holz: Die äußere Hülle der Scheune wurde nahezu unverändert erhalten. Einige neue Öffnungen verschaffen den Bewohnern eine angenehme natürliche Belichtung. Das obere Geschoss der Scheune, der frühere Heuboden, wurde mit tief gebürstetem Fichtenholz aus lokalen Forstbeständen neu ausgekleidet. Die eingestellten Nebenräume und die Galerie, aber auch die Möblierung der Wohnung bestehen ebenfalls aus Holz. Die historischen Dachziegel wurden erhalten.
Historische Scheune mit neuem Innenleben 2 | Historische Scheune mit neuem Innenleben
Hauptgeschoss 3 | Hauptgeschoss
Erhöhter Schlafbereich 4 | Erhöhter Schlafbereich
50m
Grundinformation
Fertigstellung |  2015
Bauherrschaft |  privat
Architektur |  OFIS arhitekti d.o.o., Ljubljana (SI)
Tragwerksplanung |  Projecta d.o.o., Ljubljana (SI)
Bauzeit |  10 Monate
Geschosszahl |  2 + Untergeschoss
Grundstücksgröße |  230 m²
Bruttogrundfläche |  120 m²

Technische Aspekte
Konzept |  Originalkonstruktion mit Innenausbau aus tief gebürstetem Fichtenholz
Holzbaufirma |  Permiz d.o.o., Grosuplje (SI)
Herkunft des Holzes, Zertifizierung |  Region Oberkrain (SI)
Technische Ausstattung |  Luft-Wasser-Wärmepumpe


Regional Wood Circular Economy 100% Wood


Lageplan Lageplan Ansicht Ost Ansicht Ost Längsschnitt Längsschnitt Grundriss Hauptebene Grundriss Hauptebene