Entwurf: Eine Südtiroler Holzbaufirma benötigte einen Erweiterungsbau für ihre Verwaltung, der zugleich der Demonstration der technischen Expertise und der Philosophie des Unternehmens dienen sollte. Das neue Gebäude ist Ergebnis eines eingeladenen Wettbewerbs und hebt sich vom umgebenden Industriegebiet deutlich ab. Es wurde durch die Firma selbst errichtet.
Holz: Der fünfgeschossige, hölzerne Monolith ruht auf einem schwarzen Betonfundament. Die Fassade aus undulierenden Lärchenholzlamellen spielt mit dem Gegensatz von Holz als leichtem beziehungsweise schwerem Material. Es werden bewusst verschiedenste Bauweisen vereint, von rauem Brettsperrholz in Industriequalität hin zu Ausführungen in Sicht- und Auslesequalität im Inneren. Massive Brettsperrholzträger und Holzrahmen stellen das Tragwerk, leichtere Holzrahmen und -tafeln die nichttragenden Wände.
Energie: Durch den konsequenten Einsatz von massivem Brettsperrholz und moderner Haustechnik konnte das Gebäude als Passivhaus (KlimaHaus Gold) zertifiziert werden. Zusätzlich wurde das Gebäude für seinen konsequenten Einsatz nachhaltiger Baustoffe mit dem Zertifikat KlimaHaus Natur prämiert und erhielt für sein angenehmes Arbeitsklima die Auszeichnung KlimaHaus Work&Life.
						
				Bürogebäude
Bürogebäude LignoAlp
Brixen/Bressanone, Italien
Ein neues Bürogebäude dient einer Holzbaufirma zugleich als Vorzeigeprojekt für die technologischen, energetischen und gestalterischen Möglichkeiten von Holz.
			
		
				
				Grundinformation
				
Technische Aspekte
									 
	
					
									 
	
					
									 
	
					
									 
	
					
								
				
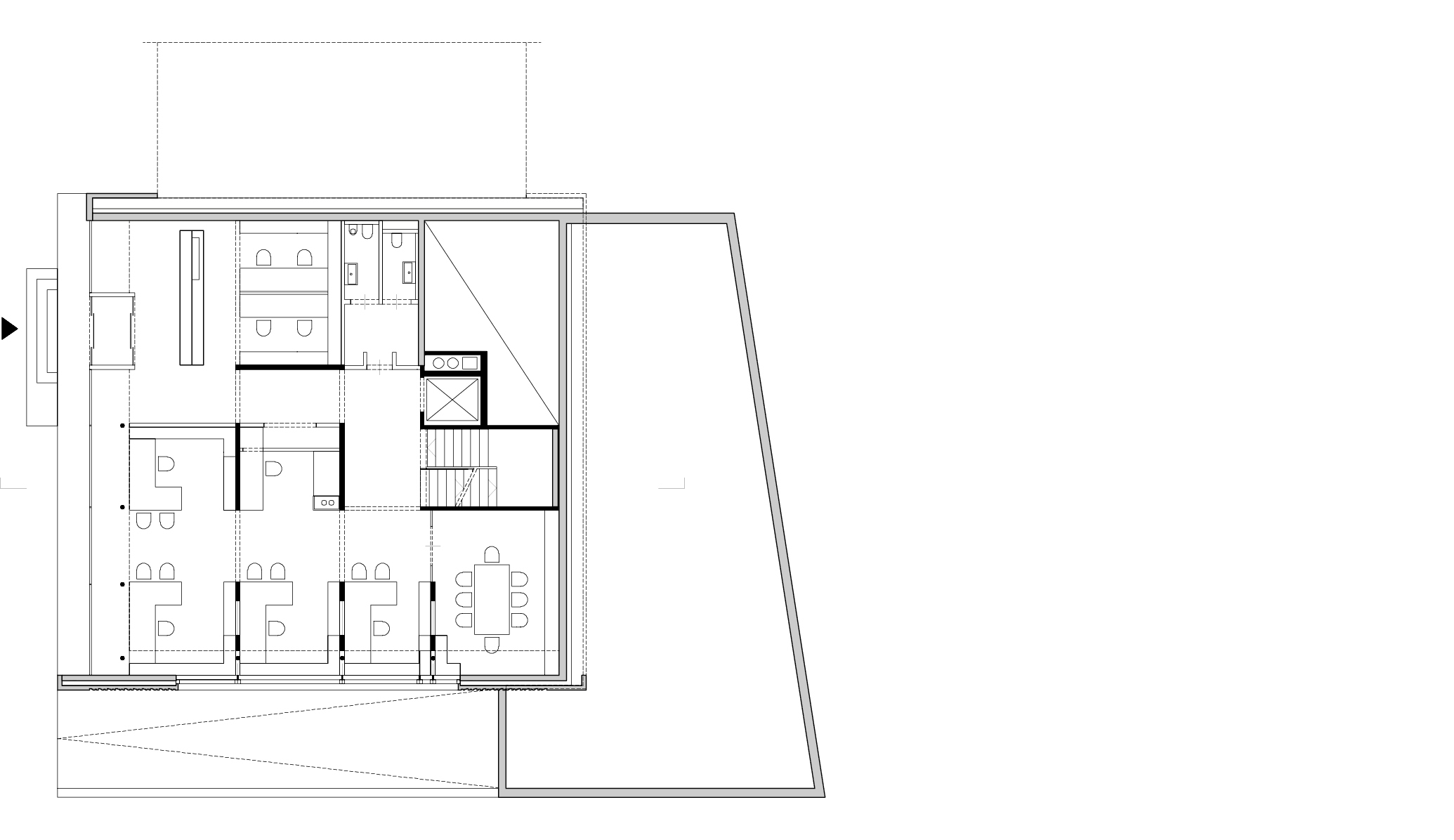
Lageplan Untergeschoss
					
									Untergeschoss
					
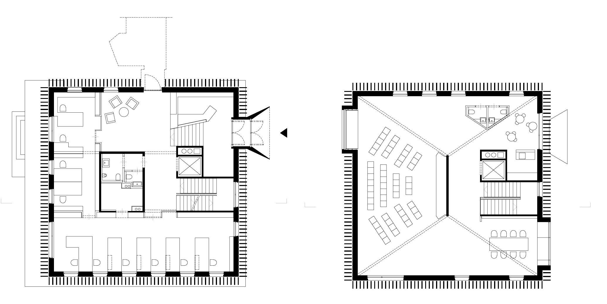
					 Erdgeschoss, 2. Obergeschoss
					
									Erdgeschoss, 2. Obergeschoss
					
					 Schnitt
					
									Schnitt
					
					 
					
							
		
								Fertigstellung | 
								2012
							
								Bauherrschaft | 
								Damiani Holz&KO SpA, Brixen/Bressanone (IT)
							
								Architektur | 
								MoDus Architects, Brixen/Bressanone (IT)
							
								Tragwerksplanung | 
								Holz: Othmar Waldboth, Klausen-Latzfons/Chiusa-Lazfons (IT); Damiani Holz&KO SpA, Brixen/Bressanone (IT)
							
								Bauzeit | 
								24 Monate
							
								Geschosszahl | 
								4 + Untergeschoss
							
								Bruttogrundfläche | 
								2 140 m² (655 m² ab Ebene 1)
							
								Baukosten, netto (KG300 + 400) | 
								2 500 €/m² BGF
							
								Auszeichnungen | 
								KlimaHaus Work&Life
							
				Technische Aspekte
								Konzept | 
								Verschiedenste Konstruktionssysteme (Holzrahmenbau für Fassade und Innenwände/ Brettsperrholz (Kreuzlagenholz) für Erschließungskern; Plattendecke (CLT), Brettstapeldecke, Lamellendecke, Balkendecke)
							
								Holzbaufirma | 
								Damiani Holz&KO SpA, Brixen/Bressanone (IT)
							
								Herkunft des Holzes, Zertifizierung | 
								Süddeutschland, Östereich (PEFC)
							
								Nachverfolgbarkeit des Holzes | 
								Durch Zertifizierung gegeben
							
								Wertschöpfungskette Holz | 
								Ausschließlich ortsansässige Firmen
							
								Energiestandard | 
								KlimaHaus Gold (<10 kWh/m²a)
							
								Technische Ausstattung | 
								Heizung und Kühlung durch Biomasse, Wärmerückgewinnung durch mechanische Lüftung
							
								Energieverbrauch | 
								8 kWh/m²a (Heizwärmebedarf)
							
								U-Wert Wand | Dach | Boden | Fenster in W/(m²K) | 
								0,27
							
				Lageplan
